Nearly-new 3-bed family home with EV charging and low-maintenance garden..
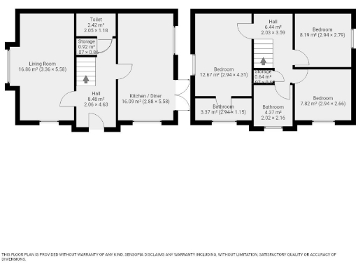
Three-bedroom semi-detached home, built 2022
Driveway with dedicated EV charging and off-street parking
Master bedroom with en-suite; downstairs WC
Low-maintenance, private rear garden; not overlooked
Front outlook over pond area
Approx. floor area 92 sq.m (1367 sq.ft) and freehold
Garden faces north — limited direct sunlight
Council tax: moderate; EPC: B
This nearly-new three-bedroom semi-detached home in Westwood Heath offers modern, low-maintenance living on a generous plot. Built in 2022, the house has a practical layout with a downstairs WC, master en-suite and an efficient gas boiler installed three years ago. The driveway includes an EV charging point and there is off-street parking for convenience.
The living areas and fitted kitchen are contemporary and easy to run, while the rear garden is designed for low upkeep and privacy. The front of the property overlooks a pond area, providing a pleasant outlook. Local transport links are strong and several well-rated primary and secondary schools are within easy reach, making this a sensible choice for families.
Buyers should note the garden faces north, which limits direct sun on the rear lawn and patio. Council tax is described as moderate. The property is freehold with an approximate internal floor area of 92 sq.m and an EPC rated B. Overall this is a modern, practical family home with good future running costs and low immediate maintenance needs.
5 bedroom detached house for sale in Follis Walk, Coventry, CV4 — £785,000 • 5 bed • 4 bath • 2422 ft²
3 bedroom semi-detached house for sale in Hurst Way, Burton Green, Coventry, CV4 — £385,000 • 3 bed • 2 bath • 991 ft²
5 bedroom detached house for sale in Bronze View, Coventry, CV4 — £775,000 • 5 bed • 3 bath • 2424 ft²
3 bedroom semi-detached house for sale in Tawny Grove, Coventry, CV4 — £300,000 • 3 bed • 2 bath • 653 ft²
3 bedroom detached house for sale in Broadwell Heights, Westwood Heath, CV4 — £410,000 • 3 bed • 3 bath • 1045 ft²
5 bedroom detached house for sale in Butterworth Drive, Coventry, CV4 — £599,995 • 5 bed • 2 bath • 1135 ft²






























































































