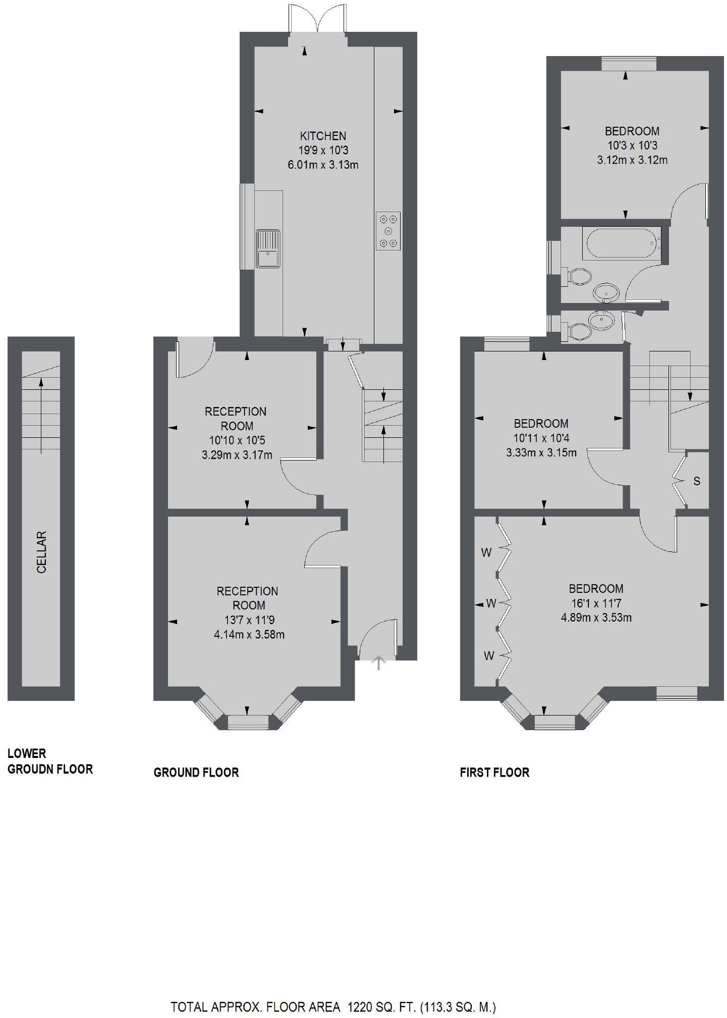
**Standout Features:**
- **Freehold Victorian Terrace** with charming period details
- **Three Bright Bedrooms**: Two average-sized with good natural light
- **Two Spacious Reception Rooms**: Includes a large, inviting living area
- **Tanked Cellar** for added storage or potential conversion
- **Potential to Extend**: Loft and side return extensions available Subject to Planning Permission (STPP)
- **Mature Garden** for outdoor enjoyment
- **Chain Free** for a smooth purchasing process
- **Excellent Transport Links**: Close to Clapham North, Stockwell, and Brixton stations
Nestled on the serene Hubert Grove, this Victorian mid-terrace home is a perfect opportunity for families or investors seeking a property with character and potential. With a generous layout of two reception rooms, a modern kitchen/breakfast area, three well-lit double bedrooms, and a large family bathroom, the space is both functional and inviting. The mature garden adds a cozy outdoor retreat, while a tanked cellar provides valuable storage options.
This property does come with some considerations—despite its charm, it has high council tax and is located in an area marked by a high crime rate. Additionally, there may be some signs of wear and tear, particularly in the kitchen. However, the potential for expansion provides an exciting opportunity to tailor the space to your needs.
The vibrant neighborhoods of Clapham and Brixton are just a short stroll away, offering bustling markets, trendy bars, and a variety of dining options. With excellent transport links, this home is perfectly positioned for city living while still feeling like a peaceful retreat. Don’t miss out on this unique opportunity — properties like this in vibrant locations are seldom available for long!
3 bedroom terraced house for sale in Hubert Grove, Stockwell, SW9 — £900,000 • 3 bed • 2 bath • 1240 ft²
4 bedroom terraced house for sale in Hubert Grove, Clapham North, SW9 — £975,000 • 4 bed • 1 bath • 1552 ft²
3 bedroom terraced house for sale in Arlesford Road, Clapham, London, SW9 — £900,000 • 3 bed • 2 bath • 1309 ft²
3 bedroom flat for sale in Hubert Grove, Clapham North, London, SW9 — £575,000 • 3 bed • 1 bath • 953 ft²
3 bedroom terraced house for sale in Andalus Road, London, SW9 — £1,000,000 • 3 bed • 1 bath • 1570 ft²
4 bedroom terraced house for sale in Solon Road, Brixton, London, SW2 — £1,100,000 • 4 bed • 2 bath • 1411 ft²


































