**Standout Features:**
- Four spacious bedrooms suitable for family living
- Desirable semi-detached construction with off-street parking
- Expansive backyard with mature shrubs for privacy
- Chain-free sale for a hassle-free transaction
- Situated in a sought-after cul-de-sac with access to local amenities and schools
**Property Concerns:**
- Potential renovation required for cosmetic updates
- High crime rate in the area, which may affect buyers' peace of mind
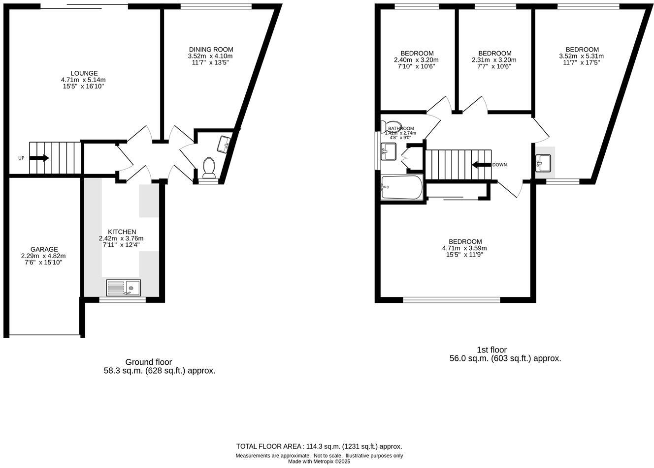
Nestled in a tranquil cul-de-sac, this four-bedroom semi-detached home offers ample living space for families seeking comfort and convenience. Boasting two reception areas, an integral garage, off-street parking, and a charming enclosed garden, this property is perfect for those looking to invest in their future. The layout includes a welcoming entrance hall, a functional kitchen, and bright living areas with natural light filtering through double-glazed windows. Enjoy the convenience of highly regarded schools and local shops just moments away.
While the home benefits from an excellent broadband connection, it may require some modernization to truly shine, presenting an exciting opportunity for buyers to add personal touches and capital value. Act quickly to secure this family-friendly gem in an area renowned for its community spirit, as properties like this don’t stay on the market for long!
4 bedroom end of terrace house for sale in The Chase, Wallington, SM6 — £625,000 • 4 bed • 1 bath • 1330 ft²
3 bedroom semi-detached house for sale in Royston Avenue, Wallington, SM6 — £575,000 • 3 bed • 1 bath • 1203 ft²
3 bedroom semi-detached house for sale in Demesne Road, Wallington, SM6 — £580,000 • 3 bed • 1 bath • 1042 ft²
4 bedroom detached house for sale in Sandhills, Wallington, SM6 — £750,000 • 4 bed • 2 bath • 1354 ft²
4 bedroom detached house for sale in Onslow Gardens, Wallington, SM6 — £725,000 • 4 bed • 1 bath • 1673 ft²
4 bedroom semi-detached house for sale in Barrow Avenue, Carshalton, SM5 — £875,000 • 4 bed • 2 bath • 2052 ft²


































































