Spacious retirement penthouse with large terrace and South Downs outlook, close to station..
Penthouse one-bedroom with unusually large private balcony and South Downs views
Purpose-built Retirement Living Plus development with staffed 24-hour emergency support
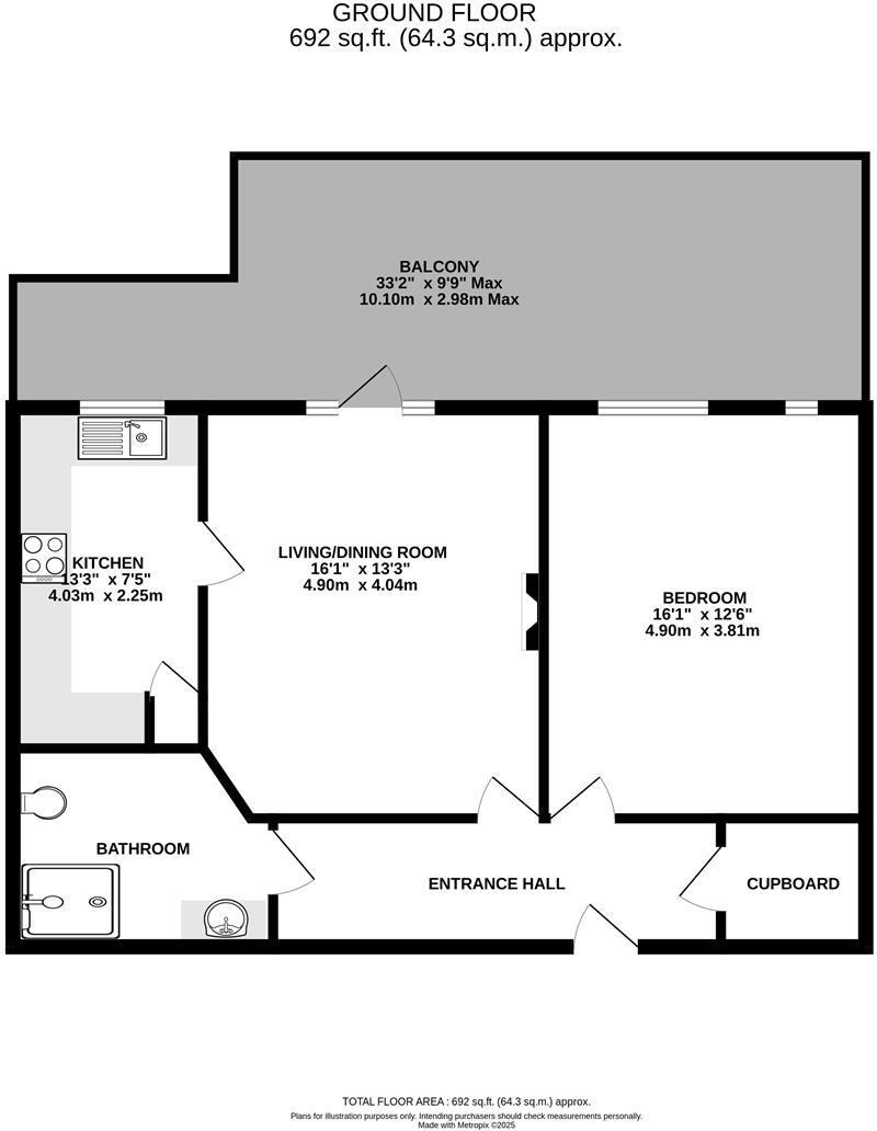
Approximately 692 sq ft — larger footprint than many one-bed apartments
Electric underfloor heating and secure double glazing throughout the apartment
Extensive communal facilities, restaurant and social events; guest suite available (fees apply)
Leasehold: 125 years from 2013 (about 113 years remaining)
Short walk to town centre, mainline station and Waitrose; good transport links
Local data notes higher-than-average crime rates despite affluent local amenities
A superior top-floor one-bedroom penthouse within a purpose-built Retirement Living Plus development. The apartment measures approximately 692 sq ft and benefits from a generous private balcony with wide southerly views towards the South Downs — an unusually large external space for this size and type.
Designed for over-70s living, the block provides extensive communal facilities: homeowners’ lounge with social events, landscaped gardens, on-site restaurant (table service), lifts, mobility scooter charging, communal laundry, one hour of domestic help weekly, guest suite (fees apply) and 24-hour emergency call system with on-site staff. The apartment itself is well presented with electric underfloor heating, double glazing and a modern fitted kitchen.
Practical points to note: the property is leasehold (125 years from 2013, c.113 years remaining) and is sold as part of a retirement development so communal service arrangements and certain fees apply for services such as the restaurant and guest suite. Local data flags higher-than-average crime rates in the wider area despite good town amenities and convenient connections to the station, Waitrose and road links.
This home will suit a retired buyer seeking low-stairs living with social facilities and strong external amenity, or an investor targeting retirement housing. Internal viewing is recommended to appreciate the size, finish and the terrace’s outlook.
1 bedroom apartment for sale in The Brow, Burgess Hill, West Sussex, RH15 9DD, RH15 — £255,000 • 1 bed • 1 bath • 678 ft²
2 bedroom penthouse for sale in The Brow, Corbett Court The Brow, RH15 — £250,000 • 2 bed • 2 bath • 1118 ft²
1 bedroom apartment for sale in Corbett Court, The Brow, Burgess Hill, RH15 9DD, RH15 — £250,000 • 1 bed • 1 bath • 657 ft²
1 bedroom apartment for sale in Corbett Court, The Brow, Burgess Hill, RH15 — £165,000 • 1 bed • 1 bath • 608 ft²
1 bedroom apartment for sale in Corbett Court, The Brow, Burgess Hill, RH15 9DD, RH15 — £165,000 • 1 bed • 1 bath • 603 ft²
1 bedroom apartment for sale in Corbett Court, The Brow, Burgess Hill, RH15 — £165,000 • 1 bed • 1 bath • 603 ft²










































