Character-filled house with garden, parking and strong local schools.
Flooded with natural light throughout
Modern, well-equipped kitchen and separate dining area
Main bedroom with en-suite; generous bedroom sizes
Stunning landscaped garden and patio area
Driveway provides private off-street parking
Built before 1900 with character features retained
Solid brick walls; no assumed cavity insulation (energy impact)
Small plot and average overall house size
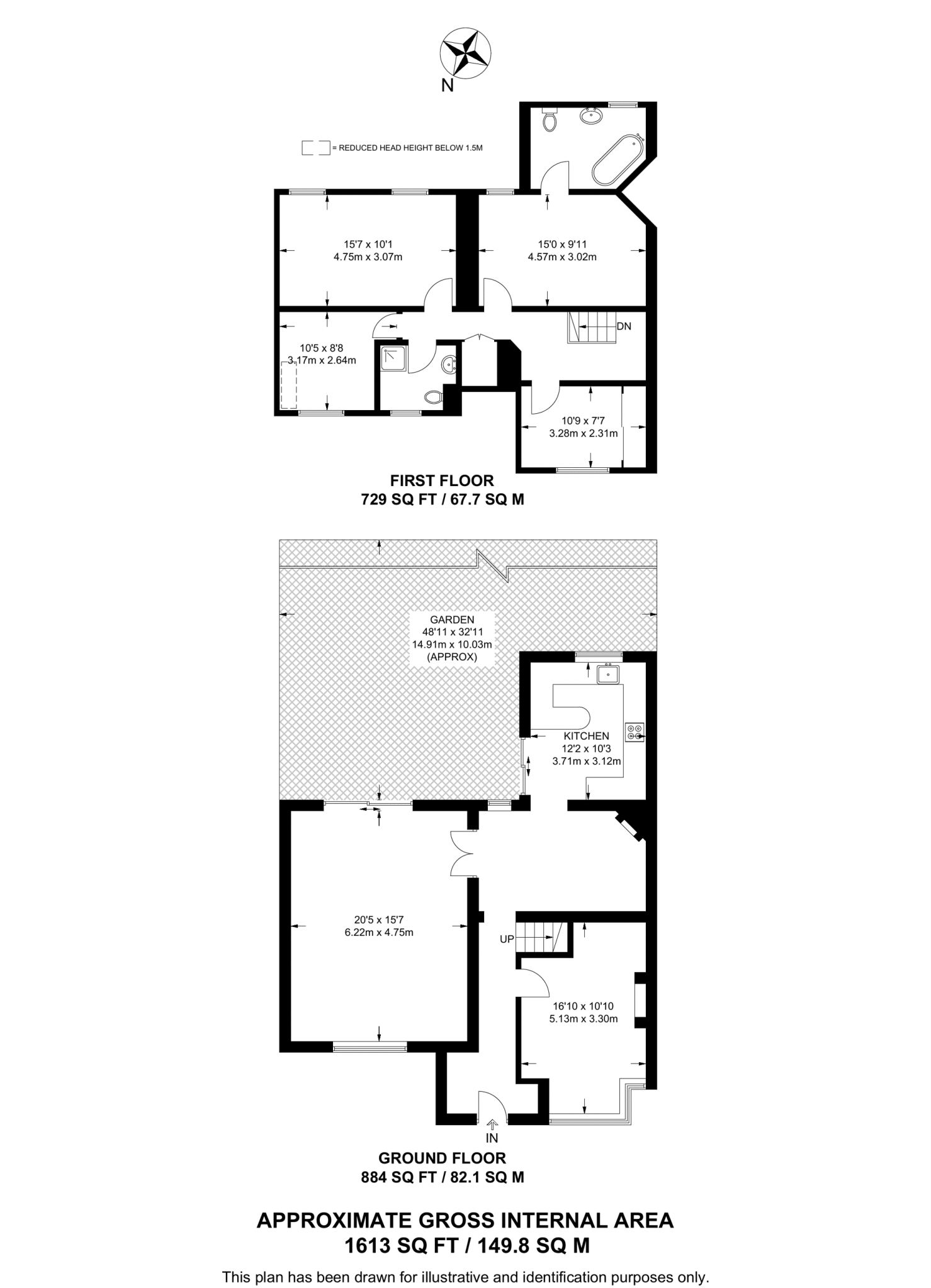
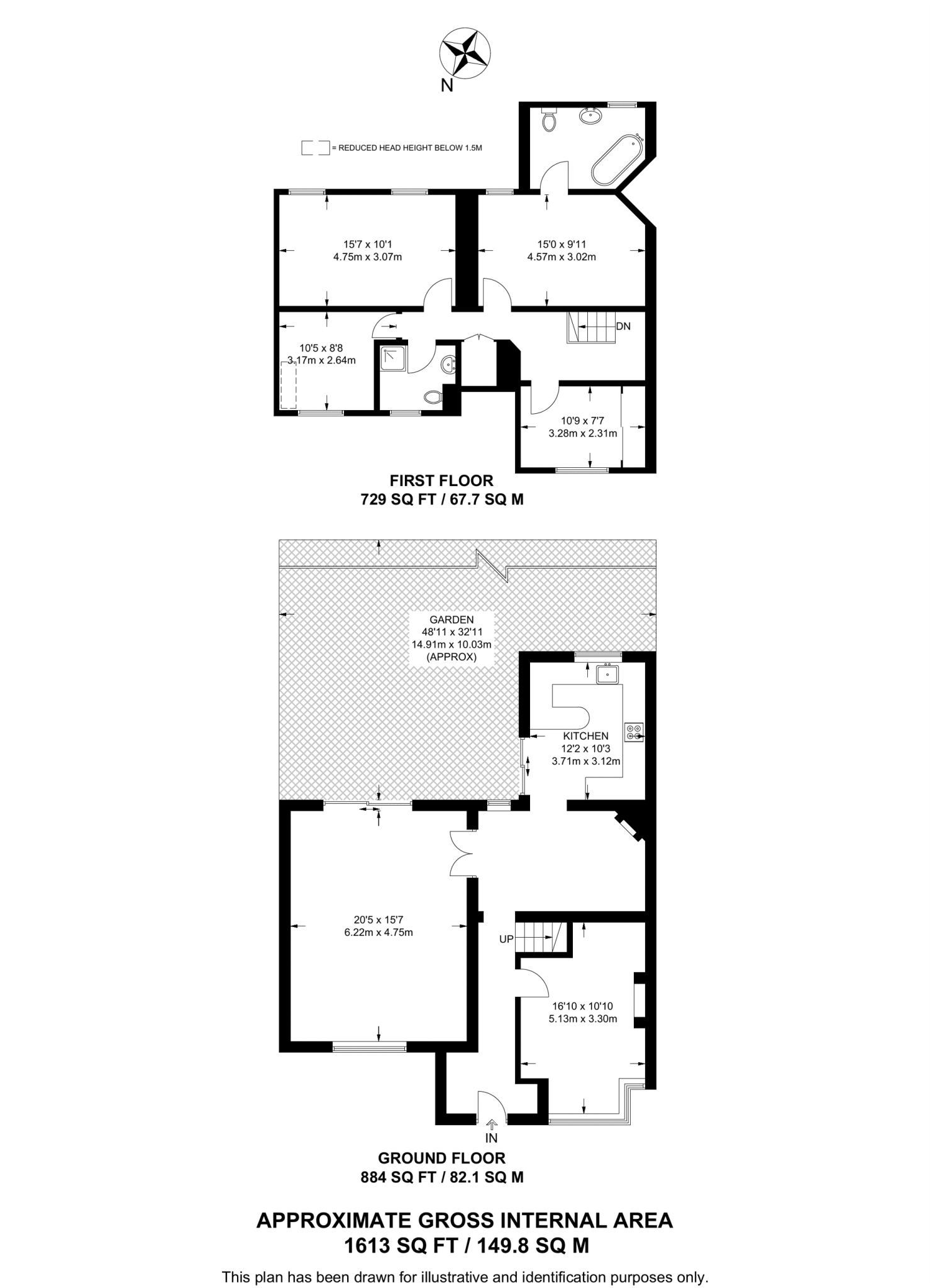
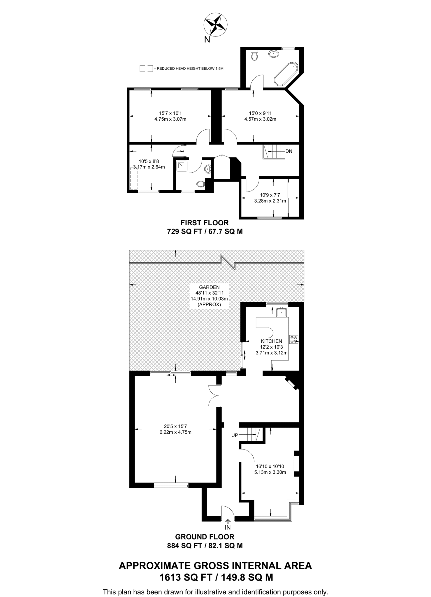
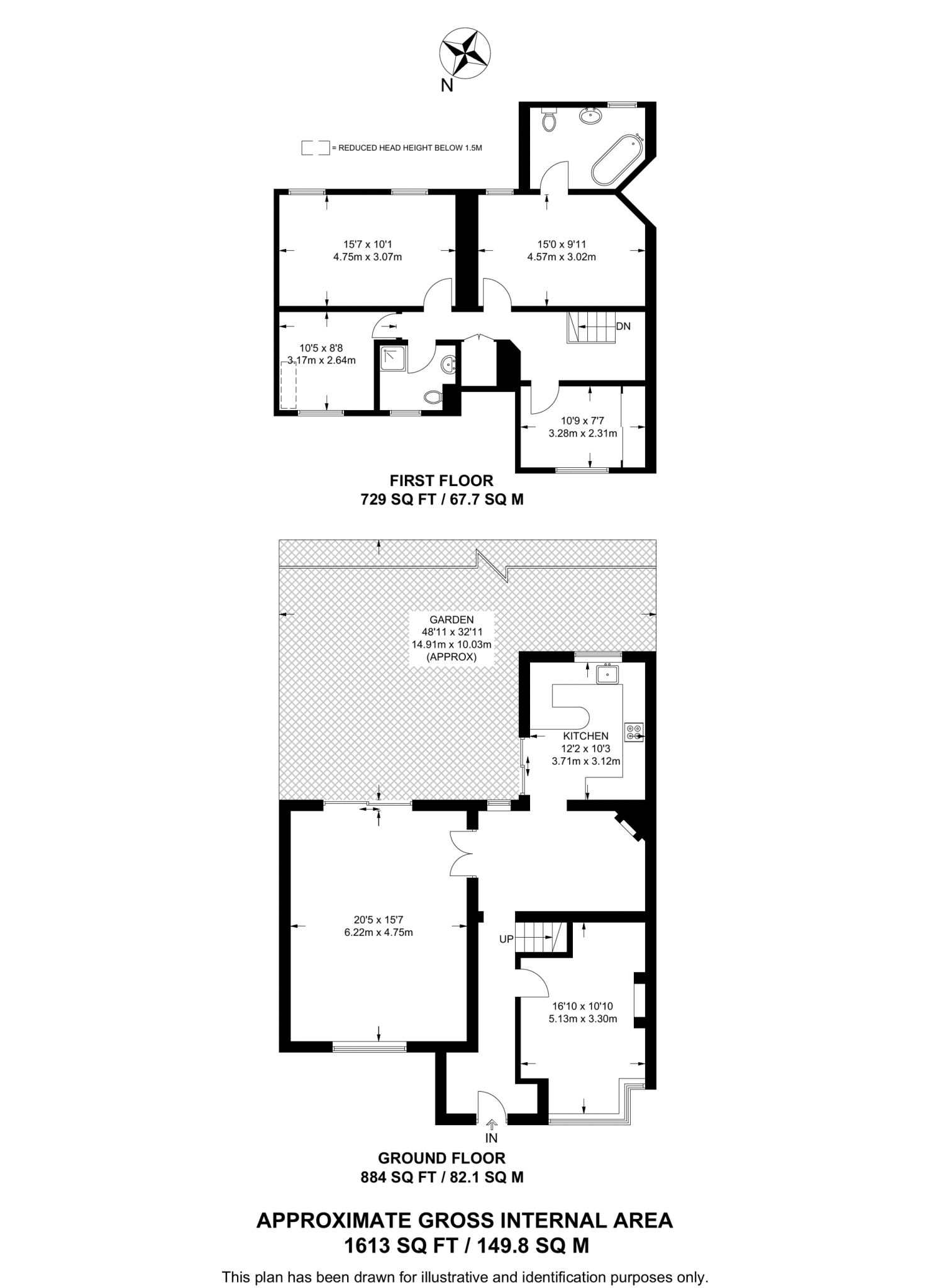
This well-presented four-bedroom semi-detached home on Boxtree Lane offers family-friendly living with character and modern comforts. The reception room and separate dining area are bright and inviting, while an additional ground-floor study/reception adds flexibility for home working or play. A modern, well-equipped kitchen and main bedroom with en-suite add everyday convenience.
Outside, a stunning landscaped garden and patio provide private outdoor space for children and entertaining, and a driveway allows off-street parking — a useful rarity in the area. The house benefits from double glazing (installed post-2002), mains gas central heating with boiler and radiators, excellent mobile signal and fast broadband, supporting busy family life and remote working.
Built before 1900, the property retains period character but has some practical considerations: walls are solid brick with no assumed cavity insulation, which may affect energy efficiency and heating costs. The plot is relatively small and the overall house size is average, so buyers should consider space expectations. There is no flood risk, tenure is freehold, and nearby schools include several rated Good and one Outstanding option, reinforcing this location’s suitability for families.
This home will suit buyers seeking a character-filled, move-in ready family house with a usable garden and parking, while those wanting high thermal performance should budget for potential insulation improvements. Viewing is recommended to appreciate the light, layout and outdoor space.
3 bedroom semi-detached house for sale in Toorack Road, Harrow, HA3 — £600,000 • 3 bed • 2 bath • 1249 ft²
4 bedroom semi-detached house for sale in Whitegate Gardens, Harrow Weald, Harrow, HA3 — £700,000 • 4 bed • 2 bath • 1674 ft²
4 bedroom detached house for sale in Boxmoor Road, Harrow, HA3 — £800,000 • 4 bed • 2 bath • 1633 ft²
4 bedroom semi-detached house for sale in Woodberry Avenue, North Harrow, HA2 — £750,000 • 4 bed • 2 bath • 1530 ft²
3 bedroom semi-detached house for sale in Boxtree Lane, Harrow Weald, Harrow, HA3 — £600,000 • 3 bed • 1 bath • 1015 ft²
3 bedroom semi-detached house for sale in Whitegate Gardens, Harrow, Middlesex, HA3 — £710,000 • 3 bed • 2 bath • 1063 ft²






































































































































































































































































