Large six-bedroom detached home with annexe, garage and extensive gardens in desirable Sherburn-in-Elmet.
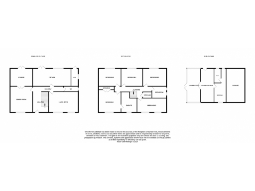
Six double bedrooms plus self-contained one-bedroom annexe
Set on a very large plot in a quiet part of Sherburn-in-Elmet, this six-bedroom detached house offers generous family living with clear countryside views. The layout includes multiple reception rooms, a modern-fitted kitchen, and an attached self-contained one-bedroom annexe — useful for multi-generational living, long-term guests, or rental income. A large double garage and extensive driveway provide substantial parking and storage.
Rooms are well proportioned throughout, making the house comfortable for a growing family and flexible for home working. The annexe has its own conservatory, kitchen/living area and en-suite for independence. Principal rooms feature wooden floors and traditional details that give the house character while allowing straightforward modernisation where desired.
Buyers should note the property’s heating is by electric room heaters and the walls are cavity-built with no confirmed insulation, so upgrading to a mains central heating system and insulating walls could improve comfort and running costs. The main en-suite bathroom is currently awaiting a suite and will need completion. Broadband and mobile signals are average for the area.
Built between 1930–1949, the house sits in a very affluent, low-crime rural area with good local schools and easy access to nearby towns and arterial routes. For buyers seeking space, privacy and potential to add value through energy and cosmetic improvements, this is a substantial family home with versatile accommodation.
5 bedroom detached house for sale in Low Garth Road, Sherburn In Elmet, Leeds, LS25 — £400,000 • 5 bed • 1 bath • 1396 ft²
5 bedroom detached house for sale in Pippin Close, Sherburn In Elmet, LS25 — £520,000 • 5 bed • 4 bath • 1992 ft²
4 bedroom detached house for sale in Finkle Hill, Sherburn In Elmet, Leeds, LS25 — £450,000 • 4 bed • 1 bath • 1545 ft²
5 bedroom detached house for sale in Bishopdyke Road, Sherburn in Elmet, Leeds, North Yorkshire, LS25 — £685,000 • 5 bed • 2 bath • 3500 ft²
4 bedroom detached house for sale in Bishops Court, Sherburn in Elmet, Leeds, North Yorkshire, LS25 — £430,000 • 4 bed • 2 bath • 1425 ft²
3 bedroom detached house for sale in Braeburn Road, Leeds, LS25 — £300,000 • 3 bed • 3 bath • 916 ft²






































































