**Standout Features:**
- Unique Grade II Listed property
- Newly renovated with high-quality finishes
- Spacious layout with versatile accommodation for multi-generational living
- Extensive landscaped gardens over 0.8 acres
- Contemporary glazed garden room connecting the main cottage and barn conversion
- Off-street parking and double carport
- Quiet village setting with low crime rates
**Concerns:**
- Listed status may deter some buyers due to restrictions
- Property maintenance costs may be high (expensive council tax)
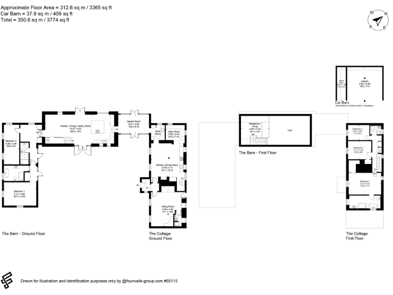
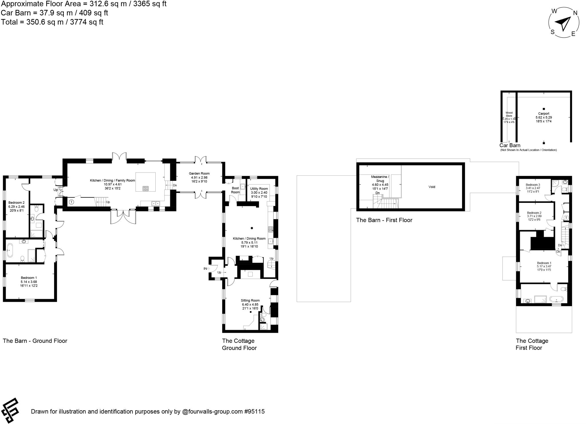
This exceptional Grade II Listed property offers a serene escape in a picturesque village setting. Featuring a beautifully renovated three-bedroom cottage and an impressive barn conversion, this home is perfect for large families or those seeking multi-generational living. The contemporary glazed garden room creates a seamless connection between the two spaces, inviting natural light and modern living into the charming period architecture.
Set within extensive professionally landscaped gardens, the property provides ample outdoor space for gatherings or children to play. Located just a short drive from Grateley station, commuting to London is made easy, while nearby Stockbridge boasts a variety of shops, restaurants, and a friendly community atmosphere.
While the listed status may present challenges regarding future renovations, the property's high-quality finishes and modern comforts bring an alluring balance to its historic charm. Don't miss the opportunity to embrace this idyllic, spacious retreat where comfort meets elegance—perfect for those who value both luxury and rural living.
5 bedroom detached house for sale in Goodworth Clatford, Andover, Hampshire, SP11 — £1,125,000 • 5 bed • 3 bath • 2793 ft²
2 bedroom detached house for sale in Nether Wallop, Stockbridge, Hampshire, SO20 — £650,000 • 2 bed • 2 bath • 1352 ft²
5 bedroom detached house for sale in Orange Lane, Over Wallop, Stockbridge, Hampshire, SO20 — £1,400,000 • 5 bed • 5 bath • 3300 ft²
4 bedroom detached house for sale in Nether Wallop, Stockbridge, Hampshire, SO20 — £935,000 • 4 bed • 2 bath • 2677 ft²
5 bedroom detached house for sale in Quarley, Andover, Hampshire, SP11 — £1,350,000 • 5 bed • 5 bath • 3765 ft²
3 bedroom semi-detached house for sale in King Lane Cottages, Over Wallop, Stockbridge, Hampshire, SO20 — £575,000 • 3 bed • 2 bath • 1539 ft²


































































































































