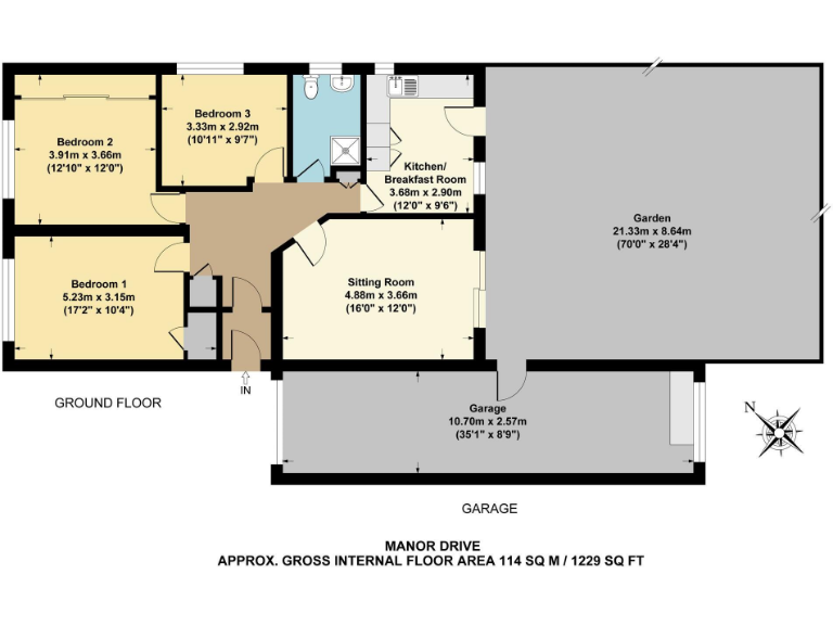
Chain‑free three‑bed bungalow with large garden and strong extension potential (STP)..
Chain free detached bungalow on a large plot
Set on a large plot on the edge of Oxford, this detached three‑bed bungalow offers comfortable single‑storey living and genuine scope to extend (subject to planning). The living room and kitchen provide practical, mid‑century space for family life while the full‑size garage and off‑street parking add everyday convenience. The home is chain free and sits in a quiet, community‑minded street a short walk from Shotover Country Park.
The property will suit families who value good local schools and outdoor space: Horspath Church of England Primary is under 300 yards away and Wheatley Park School is close by. The generous garden and large plot present obvious potential for extensions or a remodel to create a more contemporary layout — planning permission will be required for significant works.
Buyers should note the house needs updating. Heating is by electric storage heaters, the EPC is rated E, and some maintenance and modernisation will be necessary to improve comfort and running costs. Double glazing is fitted but pre‑2002, and the interior retains mid‑20th‑century finishes that will reward a sympathetic refurbishment.
Overall this is a rare, chain‑free opportunity to buy a detached bungalow in a very affluent, low‑crime area with excellent links into Oxford, Headington and nearby amenities. For a family seeking single‑storey living with scope to increase value through extension or renovation, this plot offers clear long‑term potential.
3 bedroom detached house for sale in The Ridings, Oxford, OX3 8TA, OX3 — £650,000 • 3 bed • 1 bath • 601 ft²
3 bedroom detached bungalow for sale in 19 Conifer Close, Botley, Oxford OX2 9HP, OX2 — £425,000 • 3 bed • 1 bath • 789 ft²
4 bedroom detached bungalow for sale in Gidley Way, Horspath, OX33 — £595,000 • 4 bed • 2 bath • 1432 ft²
3 bedroom bungalow for sale in Waynflete Road, Headington, Oxford, Oxfordshire, OX3 — £450,000 • 3 bed • 1 bath • 979 ft²
2 bedroom detached bungalow for sale in Spring Lane, Horspath, OX33 — £475,000 • 2 bed • 1 bath • 825 ft²
3 bedroom detached bungalow for sale in Freeman Road, Didcot, OX11 — £485,000 • 3 bed • 1 bath • 1000 ft²


































































