Contemporary four-bed detached with garage and large garden for family living.
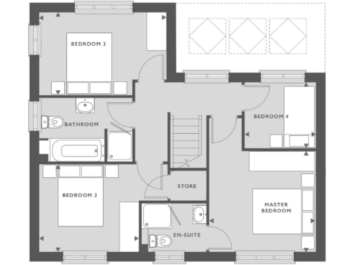
4 bedrooms including principal with en-suite
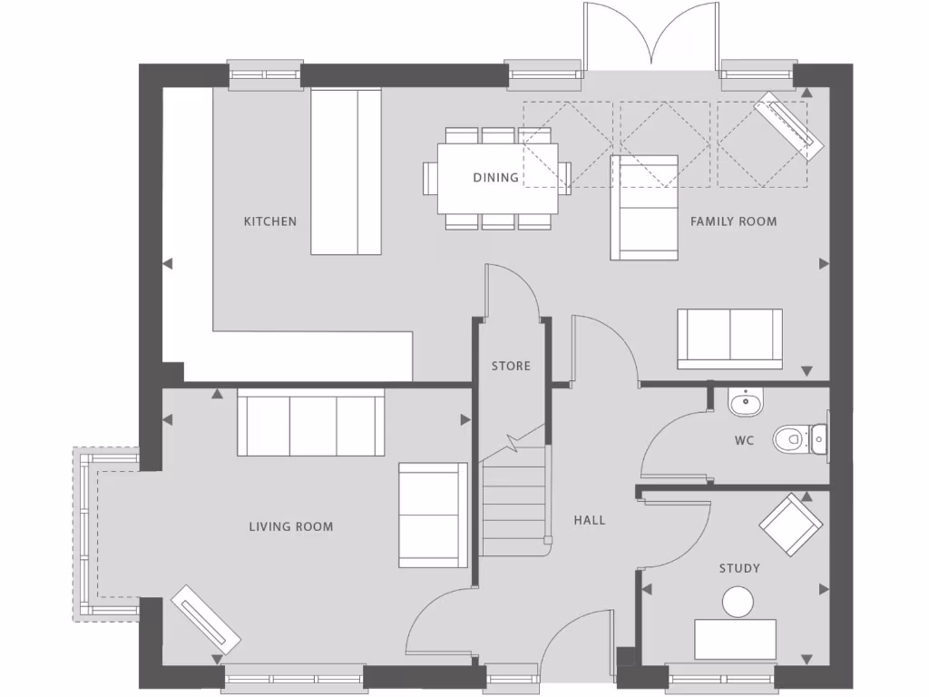
Open-plan kitchen/dining/family room with skylights
Separate living room plus front study / home‑working space
Integral garage with driveway parking and garden access
Total internal area relatively small at c.900 sq ft
Large plot size externally despite compact interiors
Service charge £299 per year (below average)
Local crime reported as high — consider security measures
A newly built four-bedroom detached home offering modern family living with practical layout and contemporary finishes. The open-plan kitchen/dining/family area is bright thanks to skylights and full-height doors to the garden, ideal for daily family life and entertaining. A separate living room and a front study provide flexible living and space to work from home.
Practical features include an integral garage with driveway parking, a downstairs cloakroom, and an en-suite to the principal bedroom—useful for busy households. The plot is described as large, giving scope for outdoor play or gardening. Broadband speeds are fast and the property is freehold with no flood risk.
Buyers should note the property’s compact internal floor area (around 900 sq ft) for a four-bedroom house; room sizes will feel modest compared with older family homes. Crime levels in the area are reported as high, and there is a recurring service charge of £299 (noted as below average) which prospective buyers should factor into ownership costs. Overall this home suits families seeking a contemporary, low-maintenance new build with good light and useful storage, provided they are comfortable with the tighter internal space and local area considerations.
4 bedroom detached house for sale in Fedora Way,
Houghton Regis
LU5 6SZ
, LU5 — £479,995 • 4 bed • 1 bath • 1385 ft²
4 bedroom detached house for sale in Fedora Way,
Houghton Regis
LU5 6SZ
, LU5 — £549,995 • 4 bed • 1 bath • 1456 ft²
4 bedroom detached house for sale in Fedora Way,
Houghton Regis
LU5 6SZ
, LU5 — £544,995 • 4 bed • 1 bath • 843 ft²
4 bedroom detached house for sale in Fedora Way,
Houghton Regis
LU5 6SZ
, LU5 — £554,995 • 4 bed • 1 bath • 947 ft²
4 bedroom detached house for sale in Fedora Way,
Houghton Regis
LU5 6SZ
, LU5 — £549,995 • 4 bed • 1 bath • 947 ft²
4 bedroom detached house for sale in Ampthill Road,
Houghton Conquest,
MK45 — £512,000 • 4 bed • 1 bath • 719 ft²














































