**Standout Features:**
- Fully renovated character cottage in Caerleon Village
- Two spacious double bedrooms
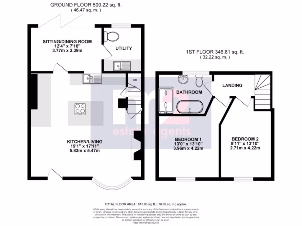
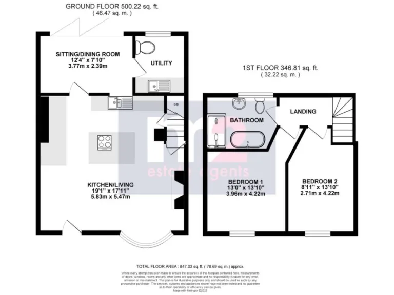
- Modern open plan kitchen/dining/living space with integrated appliances
- Stylish first-floor bathroom with freestanding bath and oversized shower
- Enclosed rear garden with patio area
- Eco-friendly wood burner in the living room
- Chain-free sale, allowing for quick move-in
**Potential Downsides:**
- Average-sized property with small plot
- Some maintenance may be needed on older sandstone walls
- Positioned within a more deprived area
Discover the charm of this stunning, fully renovated Victorian cottage nestled in the heart of Caerleon Village. This two-bedroom gem boasts a contemporary open-plan kitchen/dining/living area, featuring elegant finishes and a wood burner with exposed stone chimney breast, perfect for cozy evenings. The sleek first-floor bathroom, adorned in art deco style, adds a luxurious touch, while the enclosed rear garden invites outdoor comfort and entertainment.
You’ll appreciate the convenience of local amenities within walking distance, including shops, restaurants, and schools, making it ideal for first-time buyers or small families. With no onward chain, this property is ready for immediate enjoyment. Act fast—properties in this vibrant community don’t last long!
2 bedroom terraced house for sale in Backhall Street, Caerleon, Newport, NP18 — £190,000 • 2 bed • 2 bath • 688 ft²
2 bedroom terraced house for sale in Arthur Street, Caerleon, Newport, NP18 — £240,000 • 2 bed • 1 bath • 758 ft²
2 bedroom cottage for sale in Isca Road, Caerleon, Newport, NP18 — £360,000 • 2 bed • 1 bath • 1071 ft²
2 bedroom terraced house for sale in Church Street, Caerleon, NP18 — £220,000 • 2 bed • 1 bath • 662 ft²
2 bedroom end of terrace house for sale in Goldcroft Common, Caerleon, Newport, NP18 — £325,000 • 2 bed • 1 bath • 1452 ft²
3 bedroom semi-detached house for sale in Belmont Hill, Newport, NP18 — £380,000 • 3 bed • 2 bath






































































