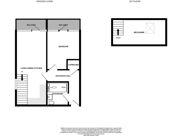
Light-filled one-bed duplex with two balconies, garage parking and long lease.
Loft-style penthouse with high ceilings and mezzanine level
A bright, loft-style penthouse in a converted 1877 mill, this one-bedroom duplex sits on the edge of Skipton’s town centre with panoramic rooftop and distant countryside views. The open-plan living, bespoke kitchen and mezzanine create a flexible layout ideal for daily life and working from home. Two private balconies and high ceilings give a strong sense of space and light.
Practical comforts include an allocated undercroft garage parking space, fast broadband availability and a very long lease (almost 999 years). The conversion completed in 2017, so finishes are recent and include modern kitchen fittings, an attractive oak staircase and a high-quality bathroom. Service charge and ground rent are transparent: around £94 pcm service charge and £250 ground rent per year.
Buyers should note the apartment relies on electric heating via room heaters, which can mean higher running costs than central heating systems. The property is leasehold (managed via the building’s management company) and is in an area with above-average recorded crime — factors to consider for some purchasers. Overall, the penthouse will suit first-time buyers, downsizers or investors seeking a low-maintenance, characterful home with strong location appeal close to shops, transport and the Yorkshire Dales.
1 bedroom apartment for sale in Firth Street, Skipton, BD23 — £169,950 • 1 bed • 1 bath • 517 ft²
1 bedroom apartment for sale in 215 Firth Mill, Skipton, North Yorkshire, BD23 2FB, BD23 — £189,950 • 1 bed • 1 bath • 449 ft²
1 bedroom apartment for sale in 111 Firth Mills, Firth Street, Skipton BD23 2FB, BD23 — £159,950 • 1 bed • 1 bath • 445 ft²
2 bedroom apartment for sale in 3 Union House, Skipton BD23 2UX, BD23 — £220,000 • 2 bed • 1 bath • 711 ft²
2 bedroom penthouse for sale in Broughton Road, Skipton, North Yorkshire, BD23 — £250,000 • 2 bed • 2 bath • 642 ft²
2 bedroom penthouse for sale in 28 Victoria Mill, Skipton, BD23 1RL, BD23 — £229,000 • 2 bed • 1 bath • 762 ft²










































































