**Standout Features:**
- **Total Area:** Approximately 563 sqm/6057 sqm (very large plot)
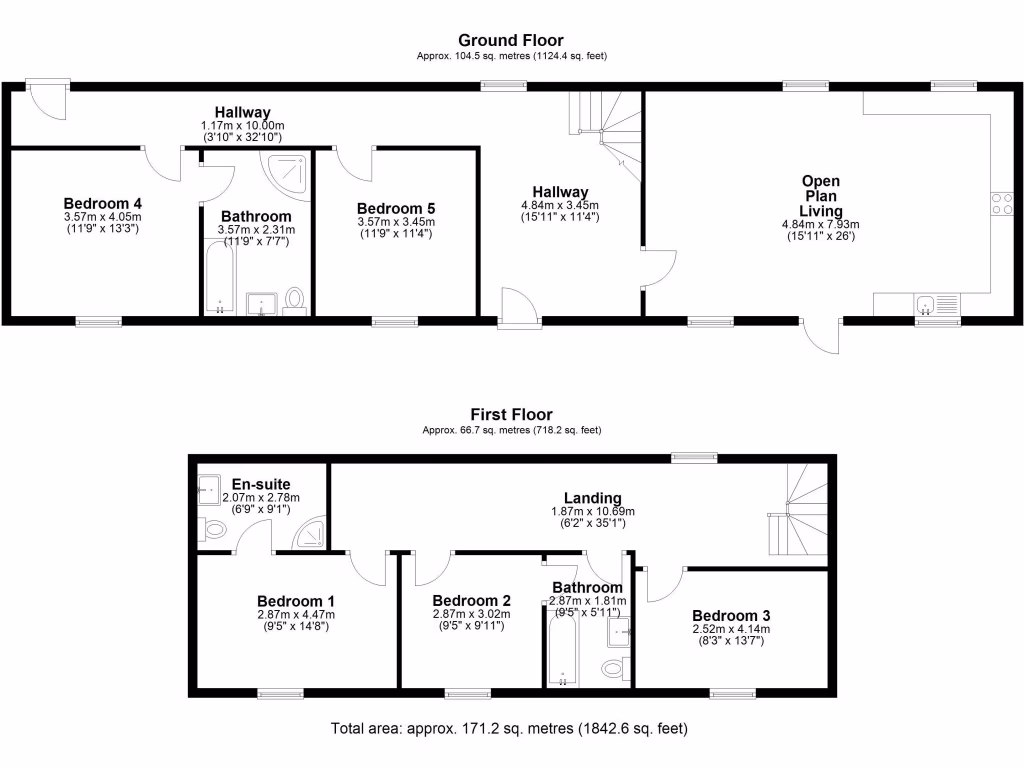
- **Accommodation:** 4 residences including a central farmhouse, two bungalows, and a barn conversion with a total of 13 bedrooms and 8 bathrooms
- **Condition:** Newly renovated, combining modern comforts with traditional farmhouse charm
- **Outdoor Space:** Extensive gardens and private grounds for each residence, off-street parking available
- **Location:** Quiet rural setting with easy access to Durham city
- **EPC Rating:** E-B
Whitwell South Farm presents an exceptional opportunity for investment or multi-family living in a picturesque rural setting. This unique property consists of four distinct residences - including a stunning farmhouse with a modern kitchen and serene garden views, two spacious bungalows, and a versatile barn conversion - all meticulously renovated to provide contemporary comfort while retaining their rustic charm. Designed with family-friendly spaces and potential for rental income, each dwelling features generous living areas and ample parking.
Potential buyers should note the properties are being sold freehold at auction, offering considerable flexibility for future renovations or extensions to enhance their values further. The serene countryside setting promotes a peaceful lifestyle while still ensuring swift connectivity to Durham city and surrounding amenities. Prospective homeowners or investors should act quickly, as this extraordinary opportunity is unlikely to last long!
13 bedroom farm house for sale in Unique Development at Whitwell South Farm, Bowburn, Durham, County Durham DH6 5NQ, DH6 — £1,000,000 • 13 bed • 8 bath • 1440 ft²
5 bedroom bungalow for sale in Knitsley, Consett, Durham, DH8 — £500,000 • 5 bed • 2 bath • 1981 ft²
4 bedroom detached house for sale in Broomhall Farm, Ushaw Moor, Durham, DH7 — £360,000 • 4 bed • 2 bath • 2400 ft²
4 bedroom farm house for sale in Shotton Colliery, Durham, Co Durham, DH6 2JE, DH6 — £320,000 • 4 bed • 2 bath • 2788 ft²
4 bedroom link detached house for sale in Darlington Road, Durham, DH1 — £900,000 • 4 bed • 4 bath • 2391 ft²
6 bedroom detached house for sale in Flass Hall, Esh Winning, Durham DH7 9QD, DH7 — £880,000 • 6 bed • 5 bath • 4596 ft²


































































































































