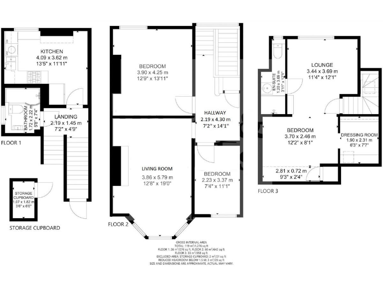
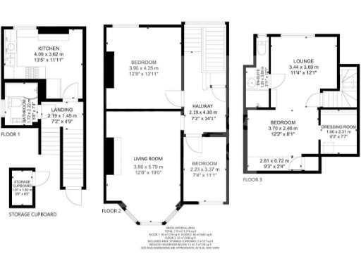
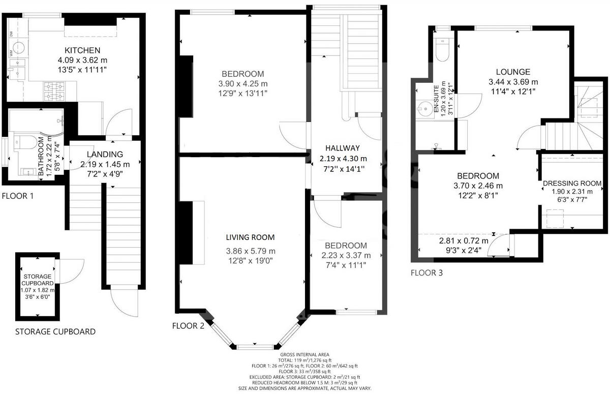
**Standout Features:**
- Top-floor apartment with approximately 1,267 sq ft of living space
- Stunning sea views and character features from a converted Victorian property
- Three spacious double bedrooms, including a principal bedroom with en-suite and dressing room
- Modern, shaker-style navy kitchen with light countertops
- Low service charges at approximately £600 annually
- Share of freehold ownership, ensuring greater control and security
**Potential Concerns:**
- Double glazing installed pre-2002 may need updating for optimal insulation
- Maintenance of a mid-terrace property may involve upkeep of shared areas
This beautifully presented top-floor apartment offers not just spacious living but a charming character, making it perfect for families and professionals alike. Enjoy breathtaking sea views from the principal bedroom and elegant living spaces adorned with high ceilings, stained-glass windows, and a striking chimney breast. The modern shaker-style kitchen and additional contemporary family bathroom add to the apartment's appeal. Located near Bognor Regis Seafront and within easy reach of local amenities, parks, and excellent transport links, including direct routes to London, this property promises convenience and lifestyle.
With its generous layout and potential for personal touches, this home is ready for you to move in and enjoy. The unique combination of living space, character, and seafront views makes this an exceptional opportunity—don't miss out on making it yours!























































































