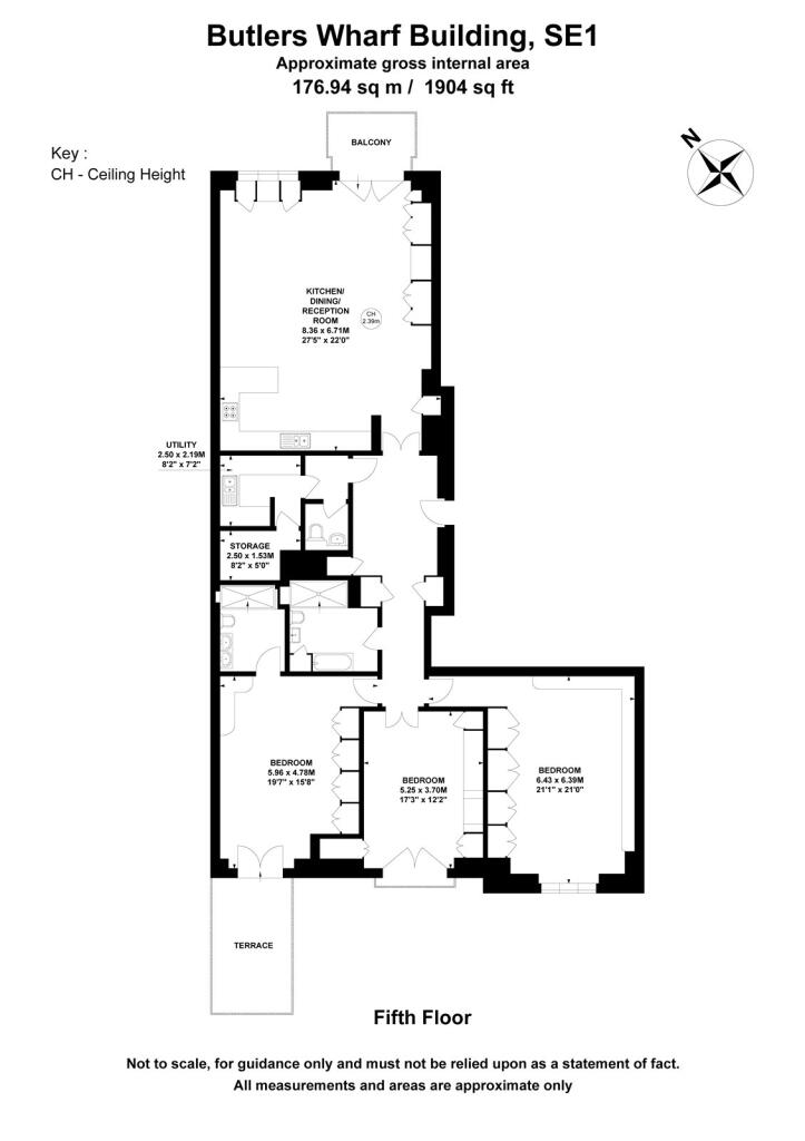
River-facing private balcony with Tower Bridge and Thames views
Over 1,900 sq ft of refurbished open-plan living space
South-facing terrace accessed from principal suite
Three double bedrooms with bespoke fitted wardrobes
Secure underground parking space and 24-hour concierge
Share of freehold with 122 years remaining on lease
High annual service charge £14,720.04 and £1,000 ground rent
Local crime recorded as above average — consider security needs
Set on the fifth floor of the iconic Butlers Wharf Building, this newly refurbished three-bedroom apartment offers more than 1,900 sq ft of warehouse-conversion living with striking exposed brickwork and high-quality finishes. The generous open-plan reception and kitchen open onto a private river-facing balcony, while the principal suite benefits from a large south-facing terrace with direct views of Tower Bridge and the Thames.
The apartment is arranged for comfortable family life or executive living: three double bedrooms with bespoke fitted wardrobes, a principal en-suite, a family bathroom, a utility room and guest WC. Practical benefits include secure underground parking, lift access, 24-hour concierge, and fast broadband with excellent mobile signal — conveniences that suit city professionals and families who need reliable connectivity and storage.
Buyers should note the material running costs: an annual service charge of £14,720.04 (including parking and reserve fund contribution) and a ground rent of £1,000 per annum. The lease has 122 years remaining and the tenure is a share of freehold. The area is very affluent and central, with superb transport links to London Bridge and the City, but local crime is recorded as above average — a factual point to weigh against the development’s secure access and concierge.
This is a rare, large riverside apartment combining character features and contemporary fittings in one of London’s most sought-after riverside locations. It will particularly suit buyers seeking substantial internal space, exceptional river and landmark views, and the convenience of central SE1 living, provided they factor in the higher ongoing service and ground rent costs.







































































































