Turnkey coastal duplex with sea views and holiday-let approval.
Panoramic sea and harbour views from private terrace
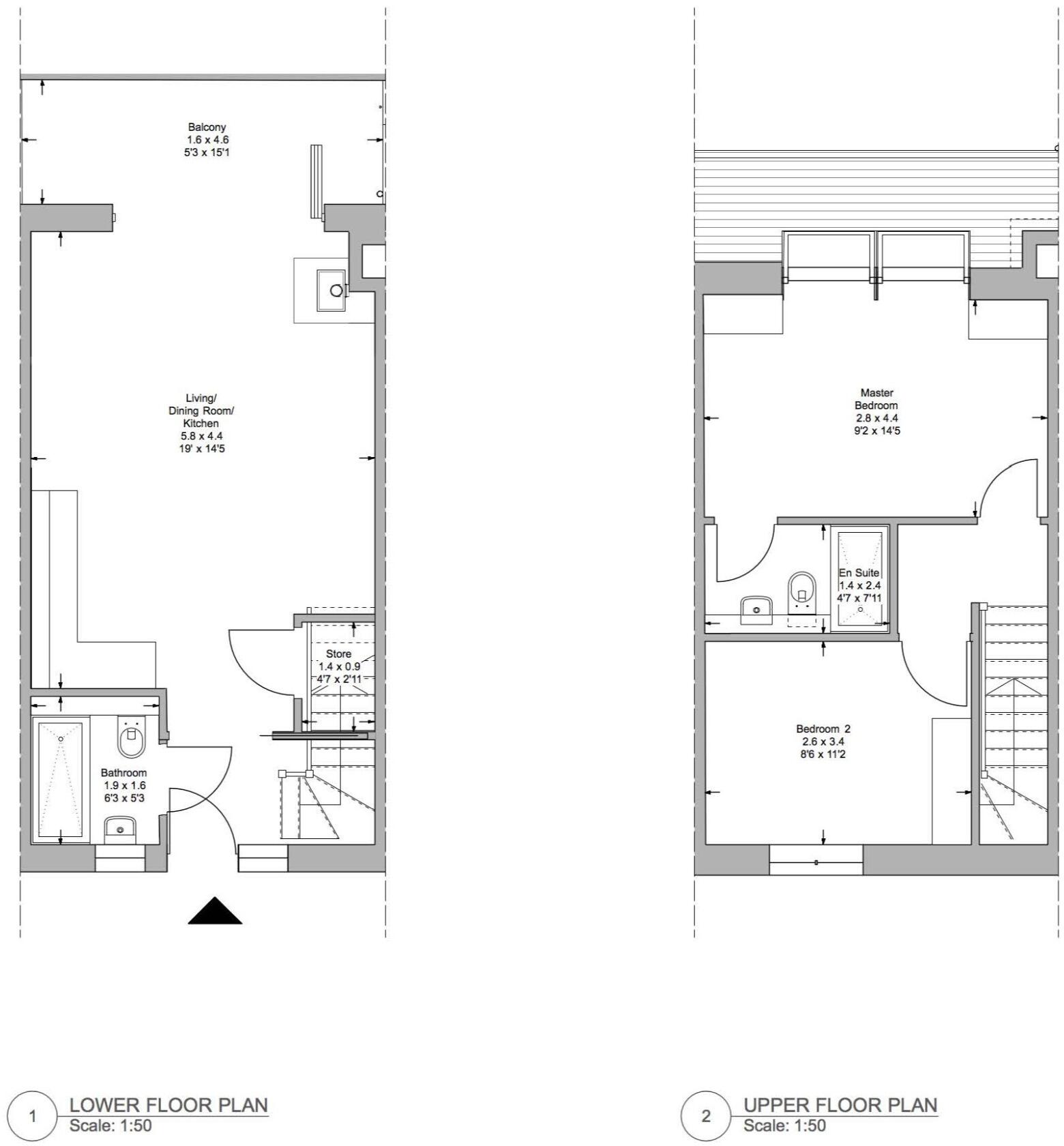
Ocean Reach, Apartment 24 is a turnkey two-bedroom duplex with proven holiday-let appeal and commanding coastal views above Lynmouth harbour. The open-plan living area flows onto a private terrace, creating an attractive indoor-outdoor living moment that suits short-term rental guests or a lock-up-and-leave second home. Allocated off-street parking and on-site EV charging add practical appeal for guests and owners.
The apartment sits within a restored period building in Exmoor National Park, blending heritage character with high-spec fittings. Two double bedrooms, two bathrooms and efficient layout deliver comfortable occupancy for couples or small groups; the property totals 646 sqft and comes with a long lease (128 years remaining). Council Tax band C and an EPC C are practical data points for running costs and letting compliance.
Important considerations: this is a leasehold property — service charges and ground rent should be checked — and heating is electric storage, which can affect operating costs. External walls are granite with assumed limited insulation, so buyers should factor potential retrofit costs if targeting year-round long lets rather than seasonal holiday use. The wider area shows pockets of deprivation despite very low crime and strong visitor demand.
For investors seeking a hands-off coastal income stream, or owners wanting a premium holiday base with management options, this apartment balances strong location and turnkey readiness against identifiable running-cost and thermal-efficiency issues. Verify service charge, letting terms and running costs during due diligence.
2 bedroom maisonette for sale in Tors Park Lynmouth N.Devon, EX35 — £545,000 • 2 bed • 2 bath • 786 ft²
3 bedroom maisonette for sale in Tors Park, Lynmouth, N.Devon, EX35 — £872,000 • 3 bed • 3 bath • 1221 ft²
2 bedroom maisonette for sale in Watersmeet Road, Lynmouth, EX35 — £175,000 • 2 bed • 1 bath • 586 ft²
2 bedroom apartment for sale in Castle Heights, Lynton, EX35 — £275,000 • 2 bed • 2 bath • 832 ft²
2 bedroom apartment for sale in Sea View Apartments, Lynton, Devon, EX35 — £290,000 • 2 bed • 1 bath • 1056 ft²
2 bedroom apartment for sale in Crofts Lea Park, Ilfracombe, Devon, EX34 — £375,000 • 2 bed • 2 bath • 2250 ft²


























































































































