Bright, practical one-bedroom in a lively canalside location ideal for first buyers.
10th-floor apartment with canal-side views and abundant natural light
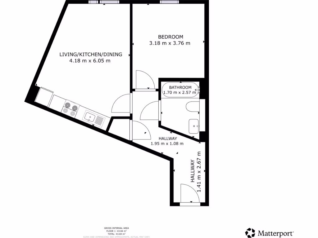
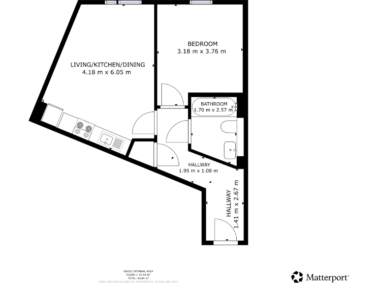
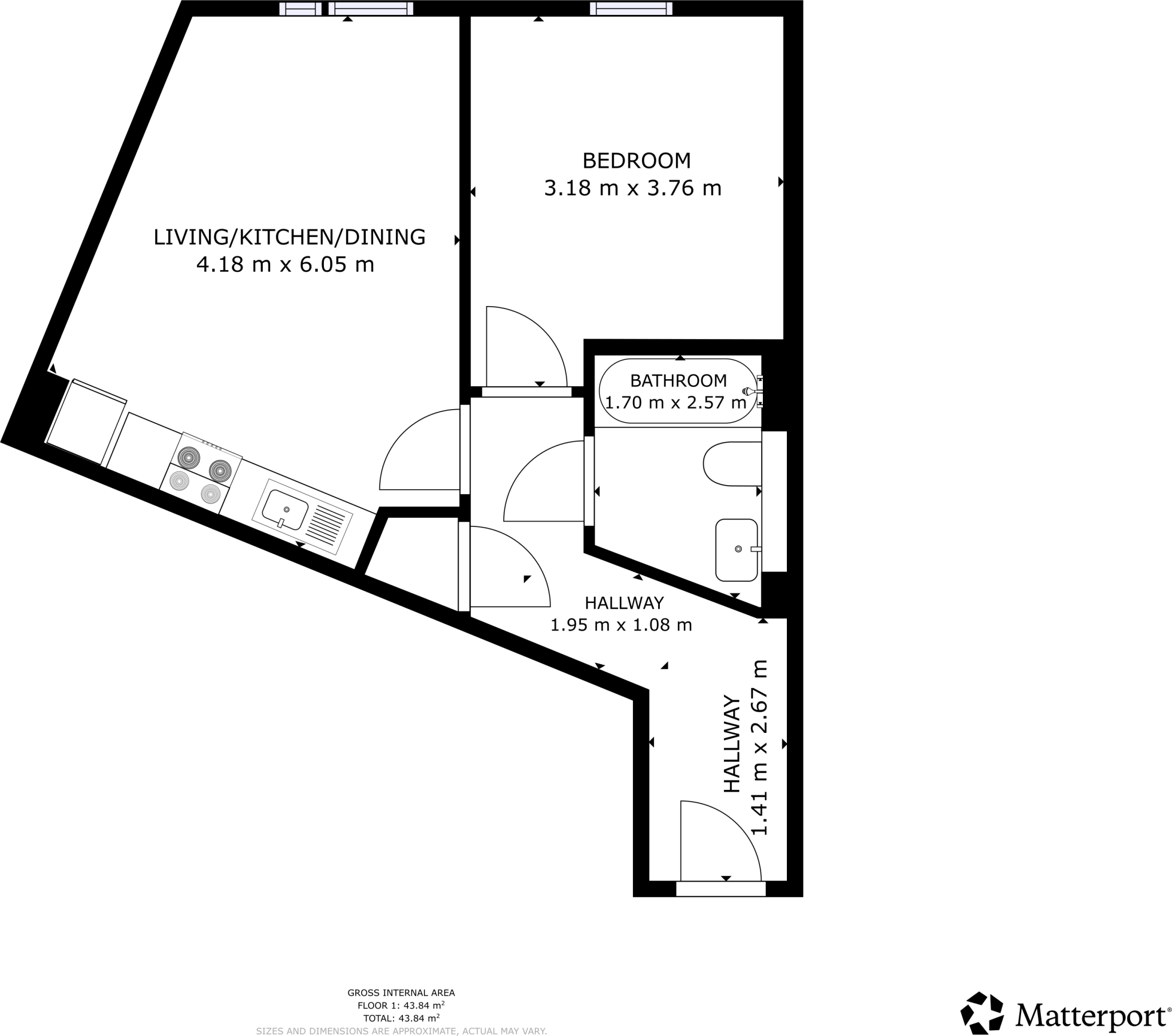
Set on the 10th floor of the popular Islington Wharf development, this one-bedroom apartment offers bright, contemporary city living with canal-side views. The open-plan living and dining area sits beside a sleek fitted kitchen, creating a light-filled space ideal for everyday living or entertaining. The double bedroom and modern bathroom complete a compact, practical layout of about 471 sq ft.
Practical details support confident purchasing: a long lease (250 years from 2006), an EPC rating of B, an available EWS1 form, and clearly stated costs — service charge around £115.47 pcm and ground rent £150 pa. The building has secure fob entry, lift access, and community electric heating. There is no allocated parking; on-street parking only.
Positioned minutes from Piccadilly Station, Ancoats Marina and the Northern Quarter, the apartment suits a first-time buyer wanting easy transport links and vibrant local amenities. Be aware the immediate area is a cosmopolitan, student-oriented neighbourhood and can be busy; the location and compact size are best suited to single buyers or couples rather than families. Service charges and community heating are ongoing costs to factor into budgets.
1 bedroom apartment for sale in Great Ancoats Street, Manchester, M4 — £200,000 • 1 bed • 1 bath • 680 ft²
1 bedroom apartment for sale in Great Ancoats Street, Manchester, Greater Manchester, M4 — £180,000 • 1 bed • 1 bath • 441 ft²
1 bedroom apartment for sale in Islington Wharf, Great Ancoats Street Manchester M4 — £200,000 • 1 bed • 1 bath • 506 ft²
3 bedroom apartment for sale in Great Ancoats Street, Manchester, M4 6DN, M4 — £325,000 • 3 bed • 2 bath
1 bedroom apartment for sale in Great Ancoats Street, Manchester, M4 6DN, M4 — £220,000 • 1 bed • 1 bath • 662 ft²
1 bedroom apartment for sale in Islington Wharf Block B, Great Ancoats Street, Manchester, M4 — £205,000 • 1 bed • 1 bath • 559 ft²






































