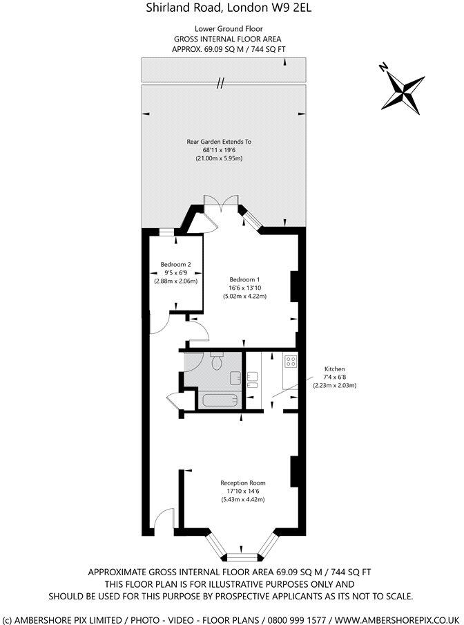
### Standout Features:
- **Two-bedroom garden apartment** in a stylish converted period building
- **Large private garden** with decked patio space, perfect for outdoor living
- **Bright reception area** with full-length sash windows and elegant wooden flooring
- **Modern, fully fitted kitchen** seamlessly integrated with the living space
- Prime location in a vibrant, cosmopolitan area close to amenities and transport links
- **Share of Freehold** tenure offering added value and flexibility
### Potential Downsides:
- **Average room sizes** may not cater to those seeking extra space
- Limited insulation in walls could impact energy efficiency and noise level
- **Service charge** of £1,000 may be a consideration for budget-conscious buyers
- **Above-average council tax** in the area
### Summary:
Nestled in the heart of a fashionable London neighborhood, this charming two-bedroom garden apartment on Shirland Road presents an ideal blend of character and modern living. The spacious open-plan reception, awash with natural light streaming in through the elegant sash windows, sets a delightful tone for the home. Enjoy your own large private garden, complete with a decked patio perfect for gatherings or peaceful relaxation. The contemporary kitchen and cozy family bathroom enhance the functionality of this inviting space. With its convenient access to a variety of boutique shops, cafes, and excellent transport links—including Warwick Avenue underground just 0.4 miles away—this property is perfect for both families and professional couples seeking a mix of comfort and community. Don't miss this opportunity to own a slice of London charm—properties like this are in high demand and won't last long!
2 bedroom apartment for sale in Shirland Road, Maida Vale, W9 — £745,000 • 2 bed • 1 bath • 744 ft²
2 bedroom flat for sale in Castellain Road, Maida Vale, W9 — £900,000 • 2 bed • 1 bath • 753 ft²
2 bedroom apartment for sale in Shirland Road, Maida Vale, London, W9 — £1,000,000 • 2 bed • 2 bath • 1039 ft²
2 bedroom apartment for sale in Shirland Road, Maida Vale, London, W9 — £650,000 • 2 bed • 1 bath • 611 ft²
3 bedroom flat for sale in Shirland Road,
Paddington, W9 — £750,000 • 3 bed • 2 bath • 1296 ft²
2 bedroom flat for sale in Hormead Road, Maida Vale, London, W9 — £675,000 • 2 bed • 1 bath • 623 ft²


















































