Compact move-in ready home with private garden and parking for first-time buyers.
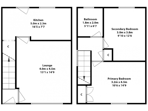
2 double bedrooms and medium-sized living space, approx 634 sq ft
Private rear garden with open farmland views
Driveway for off-street parking
Gas central heating and double glazing throughout
Excellent mobile signal and fast broadband
Presented in turn-key condition, minimal immediate work expected
Wider area classified as very deprived — consider resale/local services
Tenure not specified; buyer should confirm ownership details
Set on the quiet cul-de-sac of Morar Crescent, this two-bedroom end-terrace provides a compact, well-presented home with a private rear garden and off-street parking. At around 634 sq ft and roughly five rooms in total, the layout suits first-time buyers, couples or downsizers seeking an easy-to-run property with good local links.
Inside, the living space is bright and straightforward: a medium-sized lounge with natural light, a modern-fitted kitchen with dining space, two double bedrooms and a family bathroom. The home benefits from gas central heating and double glazing, and is described as being in turn-key condition, ready to occupy with little immediate work required.
Outside, a driveway provides convenient parking and the private rear garden enjoys open views across farmland — a useful private outdoor space for relaxing or entertaining. Mobile signal and broadband are both strong, supporting home working or streaming.
Important practical points: the wider area is classified as very deprived, which may affect local services and resale dynamics. Tenure is not specified in the information provided, so buyers should confirm ownership details. Council tax is noted as cheap and the property carries no flood risk.
1 bedroom terraced house for sale in Kilbowie Place, Airdrie, ML6 — £95,000 • 1 bed • 1 bath • 427 ft²
2 bedroom terraced house for sale in Ferguson Way, Airdrie, Lanarkshire, ML6 — £120,000 • 2 bed • 1 bath
2 bedroom semi-detached house for sale in Lilybank Avenue, Airdrie, ML6 — £85,000 • 2 bed • 1 bath • 518 ft²
3 bedroom end of terrace house for sale in Commonside Street, Airdrie, North Lanarkshire, ML6 — £160,000 • 3 bed • 1 bath • 899 ft²
2 bedroom terraced house for sale in 25 Katrine Crescent, ML6 — £94,995 • 2 bed • 1 bath • 881 ft²
2 bedroom terraced house for sale in Laggan Road, Airdrie, ML6 — £128,000 • 2 bed • 1 bath • 794 ft²














































































































































