Spacious village home with planning consent for significant enlargement.
- 0.4-acre mature, enclosed gardens with strong privacy
- Planning permission granted Dec 2024 for extension and loft conversion
- Detached double garage with workshop and loft storage
- Recently built office pod suitable for home working
- Large gravel driveway with ample off-street parking
- Requires modernisation and renovation throughout
- Slow broadband speeds; not suitable for heavy online users
- Private drainage compliance certificate in progress; EPC D
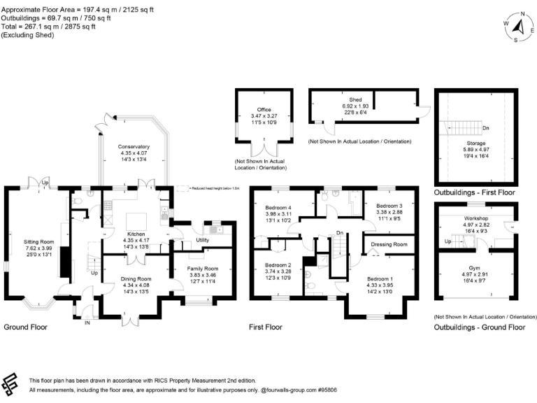
Station Lodge is a spacious four-bedroom detached family home set within a highly private 0.4-acre plot in the sought-after village of Itchen Abbas, inside the South Downs National Park. The house offers extensive lawned gardens, a large gravel driveway with ample off-street parking and a detached double garage with integrated workshop and boarded loft. A recently built office pod adds immediate work-from-home flexibility.
Internally the layout is traditionally arranged and generously proportioned with 3–4 reception rooms, a conservatory, utility room and a principal bedroom with walk-in wardrobe and en-suite. The property requires some modernisation but presents significant scope to personalise and increase living space: planning permission (SDNP/24/03431/HOUS, granted Dec 2024) allows for a substantial single‑storey extension and loft conversion into habitable accommodation.
Practical details include mains gas central heating, double glazing installed post‑2002, mains water and electricity, private drainage with a compliance certificate currently being processed, EPC rating D and Council Tax band G. Local amenities, excellent schools and strong commuter links to Winchester, the M3/A34 and rail services to London make this an appealing family location.
Buyers should note material considerations: the house needs renovation to modern standards, broadband speeds are slow, and the area records above‑average crime levels. These factors are balanced by the property's size, privacy, planning consent and countryside setting, offering a clear opportunity for a family to create a long‑term home in a prime village location.
4 bedroom detached house for sale in Old Station Road, Winchester, SO21 — £840,000 • 4 bed • 2 bath • 1627 ft²
3 bedroom semi-detached house for sale in September Cottage, Little Hayes Lane, Itchen Abbas, Winchester, SO21 — £650,000 • 3 bed • 2 bath • 1237 ft²
3 bedroom semi-detached house for sale in Station Hill, Itchen Abbas, Winchester, Hampshire, SO21 — £700,000 • 3 bed • 3 bath • 1206 ft²
4 bedroom detached house for sale in Easton Lane, Easton, Winchester, Hampshire, SO21 — £1,500,000 • 4 bed • 1 bath • 2435 ft²
4 bedroom detached house for sale in Church Road, Newtown, PO17 — £800,000 • 4 bed • 3 bath • 1600 ft²
4 bedroom detached house for sale in Pine Close, South Wonston, Winchester, Hampshire, SO21 — £650,000 • 4 bed • 2 bath • 1596 ft²






















































































