**Standout Features:**
- Prime location in Millom Town Center
- Freehold commercial unit with street-level entry
- Currently generating an annual gross income of £4,296
- Retail space with ample natural light from display windows
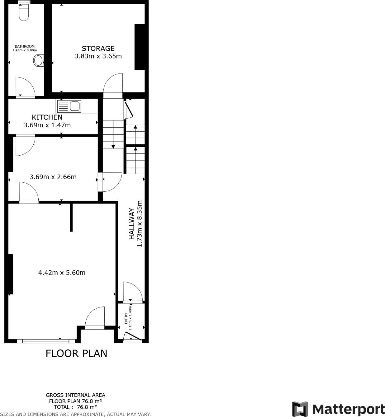
- Includes storage room, kitchen, and bathroom areas
- Close proximity to various amenities and public transport
This ground-floor commercial property in the bustling heart of Millom offers an excellent investment opportunity for serious investors and developers alike. Spanning approximately 827 square feet, this versatile unit features a charming early 20th-century shop front with large windows that ensure visibility and natural light, making it ideal for retail or office use. Currently tenanted, it provides a steady income of £4,296 annually, with potential for increased rental value in the coming years, enhancing its appeal as a worthy addition to any property portfolio.
While the surrounding area may experience above-average crime rates and is classified as deprived, the location benefits from high foot traffic and accessibility to essential amenities, such as shops, healthcare, and a variety of dining options. The property's condition is average, but with considerable renovation potential, there is an opportunity to enhance its value significantly. **Don’t miss out on this promising investment; opportunities like this in Millom’s market are rare!**
Hairdressers or barber shop for sale in Market Square, Millom, LA18 — £50,000 • 1 bed • 1 bath • 1195 ft²
Leisure facility for sale in Market Square, Millom, LA18 — £60,000 • 1 bed • 2 bath • 4306 ft²
Restaurant for sale in Market Square, Millom, LA18 — £50,000 • 1 bed • 4 bath • 2357 ft²
Storage facility for sale in Market Square, Millom, LA18 — £16,000 • 1 bed • 1 bath • 828 ft²
1 bedroom flat for sale in Market Square, Millom, Cumbria, LA18 — £55,000 • 1 bed • 1 bath • 484 ft²
Commercial property for sale in Wellington Street, MILLOM, LA18 — £65,000 • 1 bed • 1 bath






































