Newly renovated 3-bed shared ownership home — practical, affordable, but lease term affects mortgages.
3 bedroom end-terrace, newly renovated and move-in ready
Sold as 75% shared ownership for £116,250
77 years remaining on the lease — lenders may refuse mortgages
Monthly outgoings: rent ~£89.18pcm, service charge £55.33pcm
Small enclosed rear garden and small front garden
Allocated off-street parking spaces
EPC Grade C; gas boiler and double glazing installed
Quiet cul-de-sac near schools, transport and motorway links
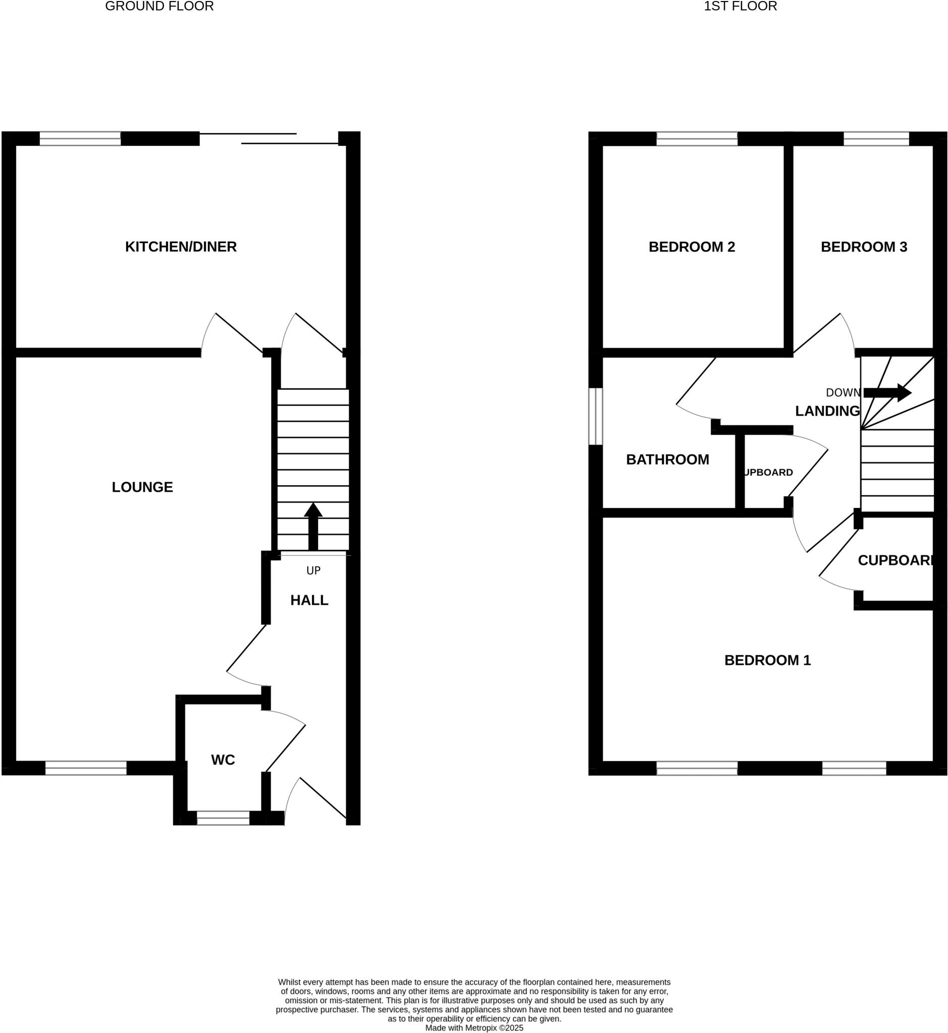
This three-bedroom end-terrace on a quiet Thornton-Cleveleys cul-de-sac offers a newly renovated, move-in ready layout ideal for first-time buyers seeking affordability and low external maintenance. The ground floor provides an entrance hall, cloakroom/WC, lounge and a kitchen/diner, while three bedrooms and a modern bathroom are arranged upstairs. A small enclosed rear garden and allocated off-street parking complete the practical package.
The property is being sold as a 75% shared ownership share for £116,250. Monthly outgoings are modest: rent approximately £89.18pcm and service charge £55.33pcm (service charge listed as £664 annually). EPC grade C and gas central heating with double glazing are recent positives following the renovation.
Important lease information affects suitability for many buyers: 77 years remain on the lease. This remaining term is likely to restrict mortgage options and some lenders may refuse to lend. There is an option to staircase to 100% ownership and pursue a freehold transfer, but buyers should factor in cost and timing for lease extension or staircasing before committing.
Nearby schools are rated Good and local amenities, transport links and the motorway network are close by. The property suits a purchaser comfortable with shared ownership terms who wants a modern, low-maintenance home but who also understands the practical implications of a shorter lease on financing and future saleability.
3 bedroom semi-detached house for sale in Aldwath Close, Poulton-Le-Fylde, FY6 — £74,950 • 3 bed • 1 bath • 797 ft²
3 bedroom semi-detached house for sale in Cedar Wood Close, Bowgreave, Preston, PR3 — £123,750 • 3 bed • 1 bath • 879 ft²
3 bedroom semi-detached house for sale in Bellflower Place, Poulton-Le-Fylde, FY6 — £105,000 • 3 bed • 1 bath • 819 ft²
3 bedroom semi-detached house for sale in Heaton Way, Kirkham, PR4 — £57,500 • 3 bed • 1 bath • 905 ft²
3 bedroom semi-detached house for sale in Rose Drive, Preston, PR3 — £176,250 • 3 bed • 2 bath • 773 ft²
4 bedroom terraced house for sale in Grantham Road, Blackpool, FY1 — £48,000 • 4 bed • 2 bath • 1271 ft²


























































