**Standout Features:**
- Guide Price: £575,000 - £600,000
- Spacious detached bungalow with 4 bedrooms
- Exceptional non-overlooked rear garden, perfect for entertaining
- Panoramic field views—ideal for nature lovers
- Three versatile reception rooms, including a sizeable sitting room
- Contemporary kitchen with breakfast area and stylish finishes
- Large conservatory with underfloor heating
- Extensive driveway with off-street parking
- Highly sought-after village location with low crime rate
- Chain free and ready for immediate move-in
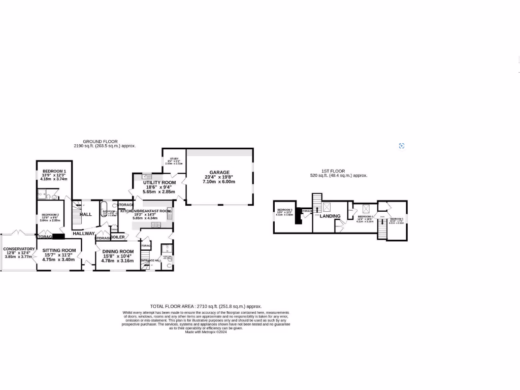
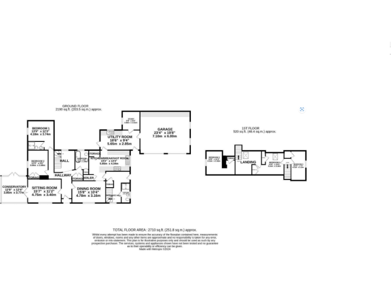
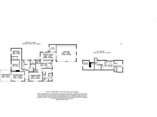
Nestled along the coveted Stubbs Green, this charming detached bungalow offers a perfect blend of space, style, and serenity. With an impressive 2710 sq ft layout, the home features four spacious bedrooms, including a principal suite with en-suite shower and delightful garden views. The heart of the home, a modern kitchen breakfast room, promises to be a gathering point for family and friends, flowing seamlessly into a gorgeous conservatory that brings the outside in.
Stepping outside, you’ll be greeted by a stunning, private rear garden—ideal for weekend barbecues or a peaceful retreat. The property also boasts three versatile reception rooms that cater to family living, providing options for a study or playroom. Well maintained and finished with double-glazing and oil central heating, it offers comfort and ease.
While the rural setting affords tranquility, local amenities, renowned schools, and scenic countryside walks are just a stone's throw away, enhancing the appeal. With its unique features and exceptional views, this gem is sure to capture the imagination of families and investors alike. Don’t miss your chance to own a slice of countryside living; properties like this simply don't last long!
3 bedroom bungalow for sale in Boundary Way, Poringland, Norwich, Norfolk, NR14 — £425,000 • 3 bed • 2 bath • 1044 ft²
3 bedroom bungalow for sale in Cherrywood, Alpington, Norwich, Norfolk, NR14 — £425,000 • 3 bed • 2 bath • 1810 ft²
4 bedroom detached bungalow for sale in Fortune Green, Alpington, Norwich, NR14 — £500,000 • 4 bed • 2 bath • 1257 ft²
3 bedroom bungalow for sale in Green Lane, Horstead, Norwich, Norfolk, NR12 — £375,000 • 3 bed • 1 bath • 1176 ft²
4 bedroom detached bungalow for sale in Hillside, Barnham Broom, Norwich, NR9 — £375,000 • 4 bed • 2 bath • 1108 ft²
3 bedroom detached bungalow for sale in Lime Tree Avenue, Long Stratton, Norwich, NR15 — £300,000 • 3 bed • 1 bath • 1076 ft²


































































































