Compact, low-maintenance three-bed with garage and garden near village amenities.
Three bedrooms with master on second floor
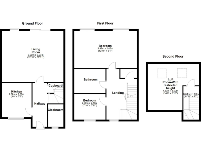
Set in a peaceful cul-de-sac in Shrivenham, this compact three-bedroom terrace offers an accessible entry into village life. The property includes a front driveway and single garage, plus an enclosed rear garden laid to lawn and patio — practical outdoor space without excessive upkeep. The living room and kitchen provide straightforward everyday accommodation, with the master bedroom located on the second floor for added privacy.
Practical details work in the home’s favour: double glazing, mains gas boiler and radiators, cavity-filled walls, Freehold tenure, and no flooding risk. A modern bathroom and downstairs cloakroom add convenience for a growing household or sharer. The home's small footprint (approximately 527 sq ft) means lower running costs but limits living space compared with larger family houses.
Location is a strong draw: very low crime, excellent mobile signal, village amenities and good primary schooling within easy reach. Broadband speeds are slow, which may matter if you work from home. Built in the 1980s, the property is well suited to first-time buyers seeking a manageable starter home or investors looking for a lettable village property. Some cosmetic updating would personalise the space and maximise long-term value.
2 bedroom end of terrace house for sale in Alexander Way, Shrivenham, SN6 — £310,000 • 2 bed • 1 bath • 783 ft²
3 bedroom detached house for sale in Queen's Crescent, Shrivenham, Oxfordshire, SN6 — £390,000 • 3 bed • 2 bath • 636 ft²
3 bedroom semi-detached house for sale in Roman Way, Shrivenham, Oxfordshire, SN6 — £315,000 • 3 bed • 2 bath • 846 ft²
3 bedroom end of terrace house for sale in Raven Way, Shrivenham, SN6 — £375,000 • 3 bed • 2 bath • 1090 ft²
2 bedroom terraced house for sale in Raven Way, Shrivenham, Swindon, SN6 — £315,000 • 2 bed • 1 bath • 872 ft²
3 bedroom terraced house for sale in Windrush, Highworth, SN6 — £219,950 • 3 bed • 1 bath • 699 ft²














































