Bright first-floor apartment with lift, parking and communal gardens — ideal for first-time buyers.
No forward chain — ready for quick completion
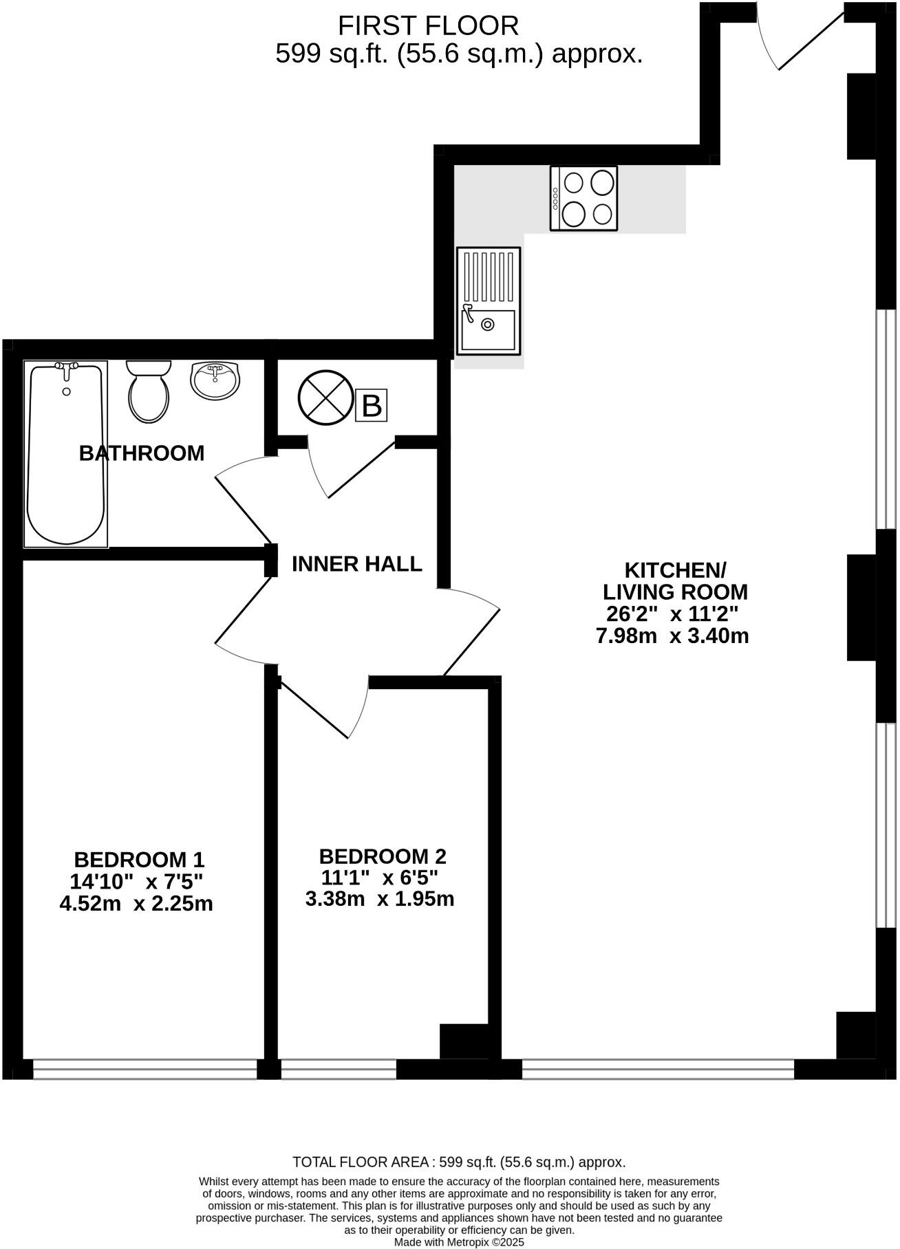
A modern first-floor apartment with no forward chain, set within a popular development north of Fareham town centre. The apartment’s main draw is a bright, dual-aspect open-plan kitchen/living room extending to about 26ft, plus two rear-facing bedrooms and a contemporary bathroom. Lift access, an allocated parking space and attractive communal gardens add practical convenience.
Running costs are mixed: the home is electrically powered with an electric boiler and radiators and carries an EPC rating of E, so heating bills may be higher than gas-heated homes. There is a service charge (£1,363.71pa) and ground rent (£400pa) to factor into annual costs, though the lease has a healthy 114 years remaining.
For first-time buyers or downsizers seeking a low-maintenance apartment with immediate availability, this property offers sensible living space (around 599 sqft), easy access to local schools and good broadband/mobile connectivity. The layout and condition are ready to occupy, with straightforward potential for cosmetic updates to personalise the finish.
2 bedroom apartment for sale in Furze Court, Fareham, PO16 — £165,000 • 2 bed • 1 bath • 599 ft²
2 bedroom apartment for sale in Sutton Court, Fareham, PO14 — £180,000 • 2 bed • 1 bath • 629 ft²
2 bedroom apartment for sale in York House, Fareham, PO14 — £185,000 • 2 bed • 2 bath • 788 ft²
2 bedroom apartment for sale in Wickham Road, Fareham, PO16 — £210,000 • 2 bed • 2 bath • 764 ft²
2 bedroom apartment for sale in Oak Road, Fareham, PO15 — £190,000 • 2 bed • 1 bath • 682 ft²
1 bedroom flat for sale in Wickham Road, Fareham, PO16 — £130,000 • 1 bed • 1 bath • 400 ft²


















































