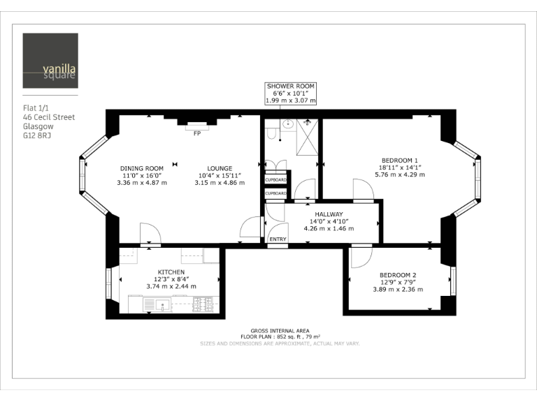
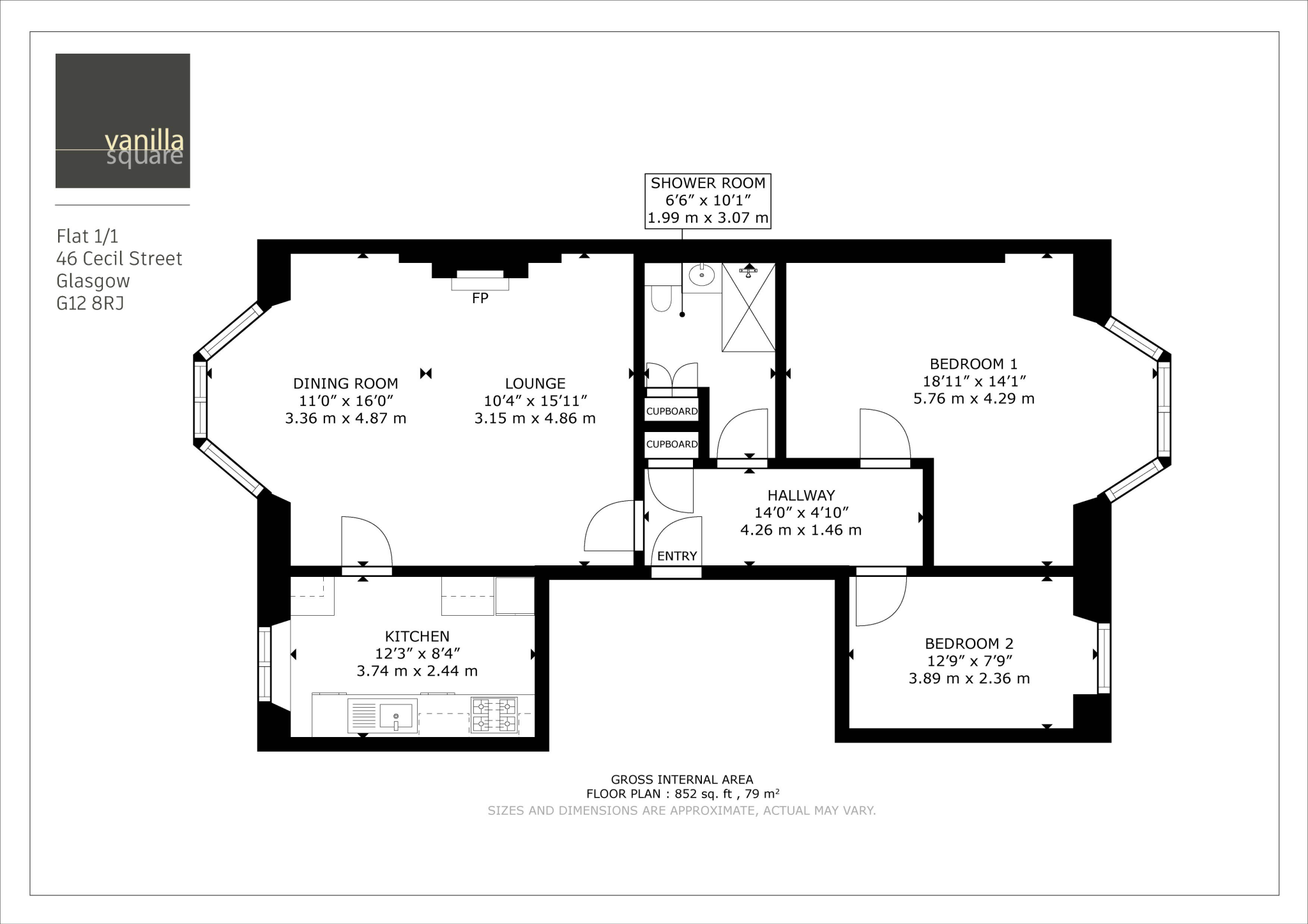
Spacious two-bed first-floor conversion with parking, garden and classic period features..
Freehold first-floor conversion in blonde sandstone townhouse
A beautifully presented first-floor conversion in a blonde sandstone Georgian townhouse, this two-bedroom flat combines period character with contemporary fixtures. High ceilings, ornate cornicing and a marble fireplace give the principal rooms strong historic appeal, while the large galley kitchen and generous reception hallway provide practical, flexible living space. The impressive master bedroom benefits from a bright bay window, and the second double currently serves as a home office.
Practical benefits include freehold tenure, gas central heating, an EER band C rating, secure entry, access to a shared residents' garden and rare private residents' parking to the rear. At around 852 sq ft the layout feels spacious for its type and suits buyers seeking a city-centre home close to amenities and transport.
Location is a major draw: walkable to Byres Road, the University of Glasgow, Botanic Gardens and Hillhead Underground. Note the property sits in a cosmopolitan, student-focused neighbourhood in a broader very deprived area; this brings vibrancy and good rental demand but also potential for increased noise and activity. The flat has one shower room only and is a first-floor conversion, which may not suit those needing ground-floor access.
1 bedroom apartment for sale in Cecil Street, Hillhead, Glasgow City, G12 — £235,000 • 1 bed • 1 bath • 818 ft²
3 bedroom flat for sale in Southpark Avenue, Hillhead, G12 — £295,000 • 3 bed • 2 bath • 1421 ft²
2 bedroom apartment for sale in Holyrood Crescent, Glasgow, G20 — £275,000 • 2 bed • 1 bath • 803 ft²
2 bedroom flat for sale in Buckingham Terrace, Botanics, G12 — £205,000 • 2 bed • 1 bath • 710 ft²
2 bedroom flat for sale in Grosvenor Crescent, Dowanhill, Glasgow, G12 — £300,000 • 2 bed • 1 bath • 787 ft²
1 bedroom flat for sale in Hyndland Road, Hyndland, G12 — £245,000 • 1 bed • 1 bath • 766 ft²


























































































