Large stone-built home with stunning south-facing garden and versatile living space.
- Spacious stone-built detached house with character features
- South-facing garden, decking and panoramic Dales views
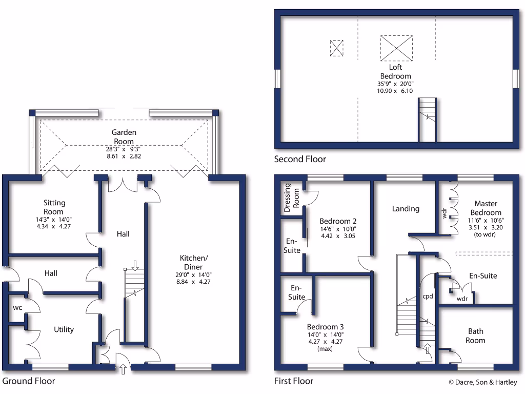
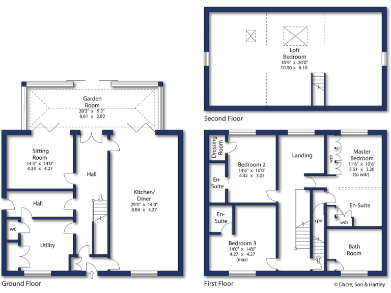
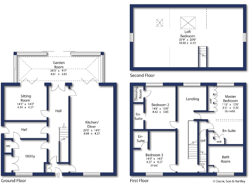
- Superb open-plan kitchen-diner flowing into garden room
- Huge 35ft second-floor room with existing en‑suite plumbing
- Double garage with power, water and cobbled driveway parking
- Air-source heat pump installed for heating and hot water
- Slow broadband and average mobile signal in the village
- Council tax level described as quite expensive
Set in the heart of Kettlewell within the Yorkshire Dales National Park, Langcliffe House is a substantial stone-built family home that blends period charm with contemporary finishes. The kitchen-diner and adjoining garden room form the social hub, with bi-folding doors and an atrium ceiling that capture uninterrupted south-facing views over the valley. Finishes are high-quality throughout, including granite worktops, Karndean flooring and multiple en‑suite shower rooms.
Accommodation is flexible and generous: four bedrooms plus a huge second‑floor room (approx. 35ft) that could serve as a home office, studio or subdivided into further bedrooms — plumbing for a previous en‑suite remains. Practical features include a large lawned garden with decking and summerhouses, a hot tub area, stone built double garage with power and water, and a cobbled driveway for several cars. An air-source heat pump provides efficient heating and hot water.
This property will particularly suit families or buyers seeking country living with high standards of finish, outdoor space and versatile room layouts. The village offers a strong community, good primary schooling and direct access to Dales walking and scenery. Skipton’s wider services and rail links are about 14 miles away.
A few practical points to note: broadband speeds in the village are slow and may not suit heavy home‑working without alternative connectivity; mobile signal is only average. Council tax is described as quite expensive. Otherwise the house has been meticulously maintained and offers immediate move‑in potential with scope to personalise the large top-floor space if desired.
4 bedroom detached house for sale in Eller House, Kettlewell, Skipton, North Yorkshire, BD23 — £785,000 • 4 bed • 2 bath • 1722 ft²
5 bedroom detached house for sale in Kettlewell, Skipton, BD23 — £775,000 • 5 bed • 4 bath • 2293 ft²
3 bedroom detached house for sale in Kettlewell, Skipton, BD23 — £584,950 • 3 bed • 2 bath • 1232 ft²
5 bedroom detached house for sale in Old Hall Laithe & Barn on The Green, Kilnsey, Skipton, BD23 — £850,000 • 5 bed • 3 bath • 2700 ft²
2 bedroom bungalow for sale in Kettlewell, Skipton, North Yorkshire, BD23 — £375,000 • 2 bed • 2 bath • 1382 ft²
5 bedroom detached house for sale in Skyreholme, Skipton, North Yorkshire, BD23 — £895,000 • 5 bed • 3 bath • 2346 ft²


















































































































