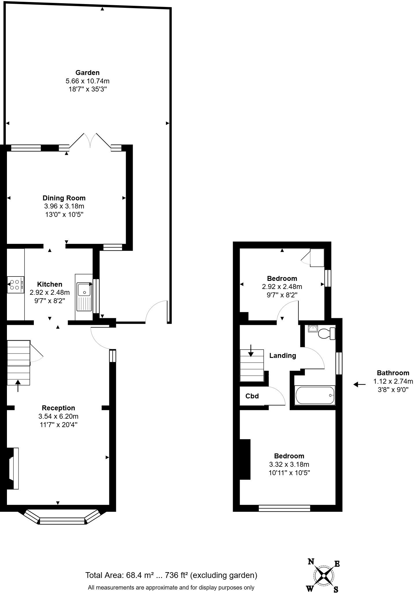
Village-centre two-bedroom home with modern updates and quaint courtyard garden.
Two double bedrooms with vaulted ceiling to principal bedroom
Two reception rooms; bay-window lounge with period features
Modern kitchen and bathroom; well presented throughout
Private, secluded courtyard garden — small and low-maintenance
Approx. 764 sq ft; compact layout limits major extension potential
Built 1820 in solid brick; likely uninsulated walls (assumed)
Single bathroom for two bedrooms; family use but no en-suite
Freehold tenure; fast broadband and excellent mobile signal
This charming two-bedroom semi-detached house dates from 1820 and blends period character with modern upgrades. Internally the property feels welcoming, with two reception rooms, a well-proportioned lounge with bay window and exposed beams, and a stylish kitchen and bathroom. The layout suits a young family or professionals seeking village-centre convenience.
Set in the heart of London Colney, the home benefits from excellent local schools, shops and transport links. The private, secluded courtyard garden is low-maintenance and offers a pleasant outdoor space, though it is small and courtyard-style rather than a large lawn. The property’s compact footprint (approx. 764 sq ft) makes it easy to run but limits extension potential without planning.
Built in solid brick before 1900, the house retains character features but may need periodic maintenance associated with older construction. Walls are assumed uninsulated, double glazing is present but install date is unknown, and there is one bathroom serving two double bedrooms. Overall, this is a characterful, well-presented home for buyers seeking village living with good schools and fast broadband.
2 bedroom terraced house for sale in St Annes Road, London Colney, AL2 — £465,000 • 2 bed • 1 bath • 947 ft²
2 bedroom end of terrace house for sale in Seaton Road, London Colney, St. Albans, AL2 — £400,000 • 2 bed • 1 bath • 668 ft²
2 bedroom terraced house for sale in Old Cottages, Bell Lane, London Colney, St. Albans, AL2 — £390,000 • 2 bed • 1 bath • 900 ft²
2 bedroom terraced house for sale in Seaton Road, London Colney, AL2 — £425,000 • 2 bed • 2 bath • 764 ft²
2 bedroom terraced house for sale in Perham Way, London Colney, ST. ALBANS, AL2 — £425,000 • 2 bed • 1 bath • 553 ft²
2 bedroom terraced house for sale in High Street, London Colney, St. Albans, Hertfordshire, AL2 — £425,000 • 2 bed • 1 bath • 851 ft²






























