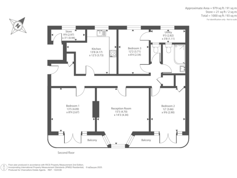
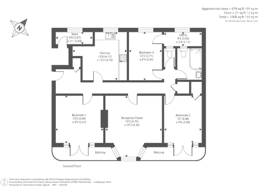
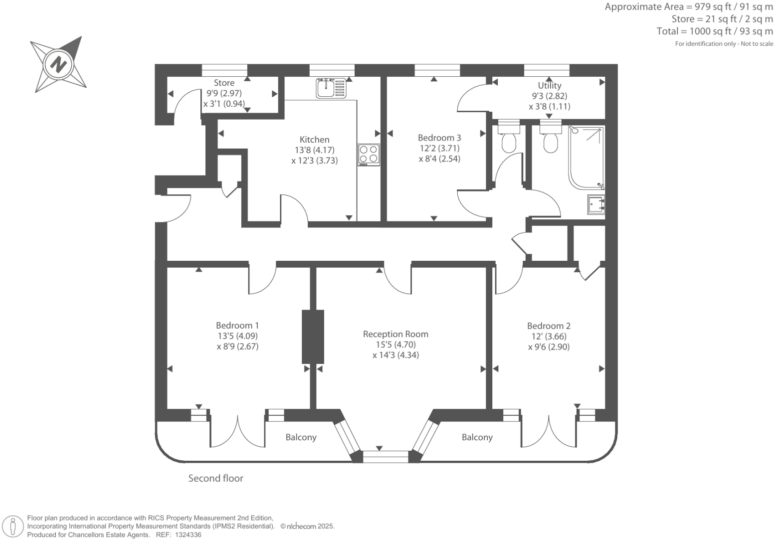
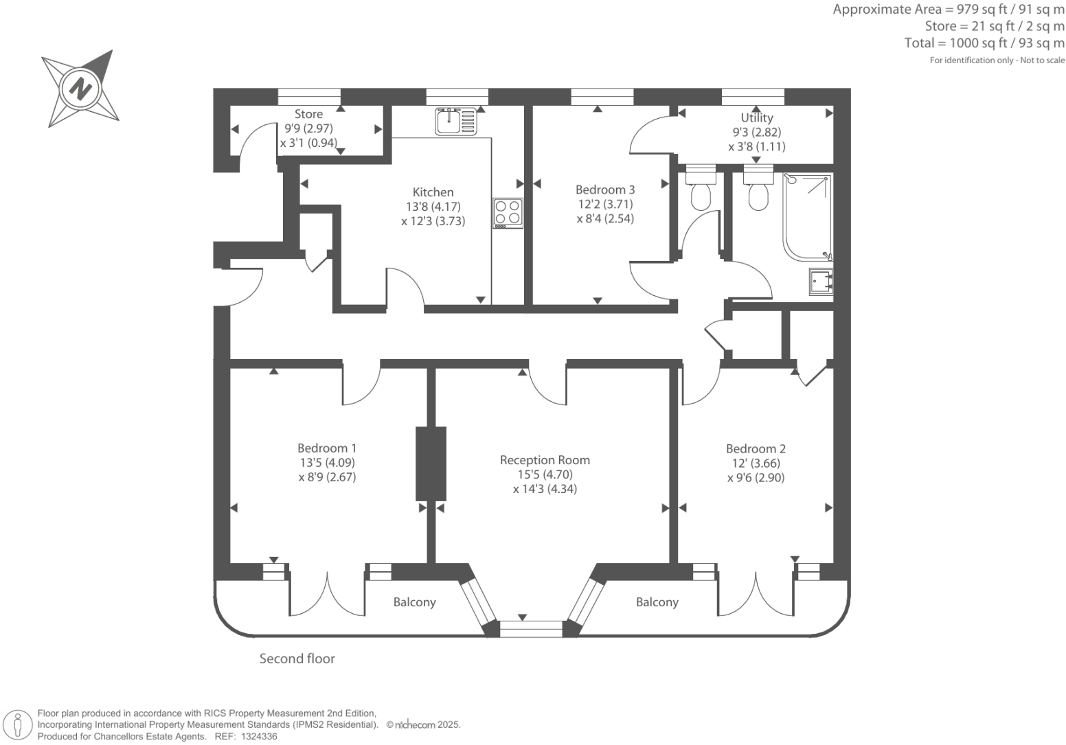
Light-filled three-bedroom flat with balcony and golf-course backing communal grounds.
Approximately 1,000 sq ft of living space
Set in a refurbished Art‑Deco block on the Highgate/East Finchley border, this newly renovated three-bedroom flat offers bright, spacious living across about 1,000 sq ft. The large reception room benefits from bay windows and views over well-tended communal grounds backing onto Highgate golf course, while the principal bedroom opens directly onto a private balcony.
Practical running costs are supported by double glazing and a mains gas boiler with radiators. The property comes with a long share of freehold (999-year term from 2014) and fast broadband and mobile signal — useful for home working or streaming. Unallocated off-street parking provides convenience though no dedicated space is guaranteed.
This layout suits first-time buyers or investors seeking a large, characterful apartment with ready-to-move-in condition. Note the flat has a single bathroom plus separate W.C., above-average council tax, and the building’s original solid brick walls likely lack modern cavity insulation — further insulation works could be considered to reduce bills. Overall, the combination of size, condition and location makes this a practical city-home with strong local schools and amenities nearby.
3 bedroom apartment for sale in Southwood Lane, Highgate, N6 — £1,250,000 • 3 bed • 2 bath • 1529 ft²
3 bedroom apartment for sale in Cholmeley Park, N6 — £1,400,000 • 3 bed • 1 bath • 1283 ft²
3 bedroom flat for sale in Hornsey Lane, London, N6 — £625,000 • 3 bed • 1 bath • 855 ft²
2 bedroom apartment for sale in Belvedere Court, Hampstead Garden Suburb, N2 — £650,000 • 2 bed • 1 bath • 1089 ft²
3 bedroom flat for sale in Cholmeley Park, London, N6 — £1,400,000 • 3 bed • 1 bath • 1180 ft²
2 bedroom flat for sale in Aylmer Road, East Finchley, London, N2 — £475,000 • 2 bed • 1 bath • 714 ft²


















































































































































