Affordable starter home with upgrade potential near schools and transport.
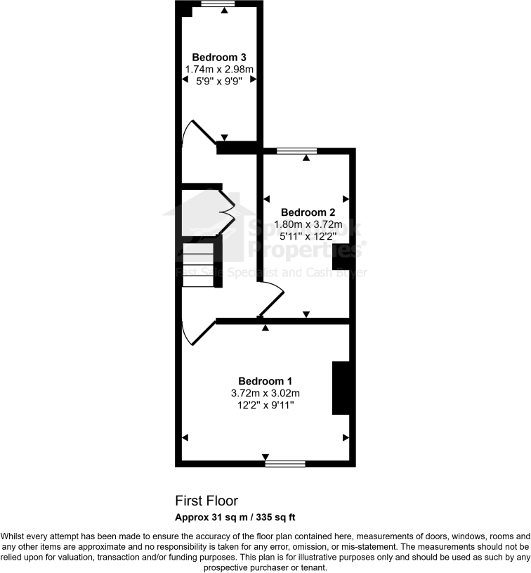
Three-bedroom Victorian terrace, two doubles and one single bedroom
Small overall size — approximately 335 sq ft (compact rooms)
Freehold with Council Tax Band A — low ongoing tax cost
Modern fitted galley kitchen but property needs renovation in places
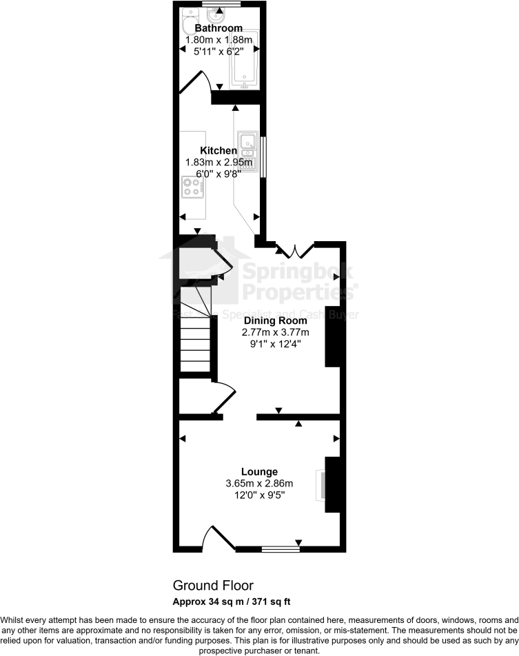
Separate dining room with patio doors to a low-maintenance rear yard
Good transport links, fast broadband and excellent mobile signal
Nearby good and outstanding schools; local shops and green spaces close
Area shows deprivation and higher-than-average crime; consider safety measures
A compact three-bedroom Victorian terrace on Coneygree Road offering an affordable entry into Peterborough. The property is freehold with Council Tax Band A and a recently fitted modern galley kitchen; two double bedrooms and one single provide flexible living across two floors. The rear courtyard is low-maintenance and private, suitable for simple landscaping.
The house measures approximately 335 sq ft and is described as needing renovation in places — cosmetic attention and some updating will be required to bring rooms up to modern standards. The layout is traditional and linear with a cosy living room, separate dining room with patio doors, and a practical family bathroom. Buyers should note the small overall floor area when assessing space for a growing household.
Location is a key strength: well-connected for commuters with good bus routes and road links, fast broadband and excellent mobile signal. Several well-regarded primary and secondary schools are nearby, along with supermarkets, green spaces and local amenities. The neighbourhood shows signs of deprivation and recorded high crime levels; prospective purchasers should factor local safety and community conditions into their decision.
This house suits first-time buyers or investors looking for a low-entry purchase with short-term upgrade potential. It offers immediate occupancy possibilities but will repay improvement work through smarter reconfiguration or cosmetic refurbishment.
2 bedroom terraced house for sale in Chapel Street, Stanground, Peterborough, PE2 — £210,000 • 2 bed • 1 bath • 1002 ft²
3 bedroom terraced house for sale in Sprignall, Bretton, Peterborough, PE3 — £230,000 • 3 bed • 3 bath • 976 ft²
3 bedroom terraced house for sale in St. Margarets Road, Peterborough, PE2 — £210,000 • 3 bed • 1 bath • 767 ft²
3 bedroom terraced house for sale in Eastfield Road, Peterborough, PE1 — £170,000 • 3 bed • 1 bath • 743 ft²
3 bedroom terraced house for sale in Appleyard, Peterborough, PE2 — £185,000 • 3 bed • 1 bath • 851 ft²
3 bedroom end of terrace house for sale in Bringhurst, Orton Goldhay, Peterborough, Cambridgeshire, PE2 — £155,000 • 3 bed • 1 bath • 841 ft²


























































