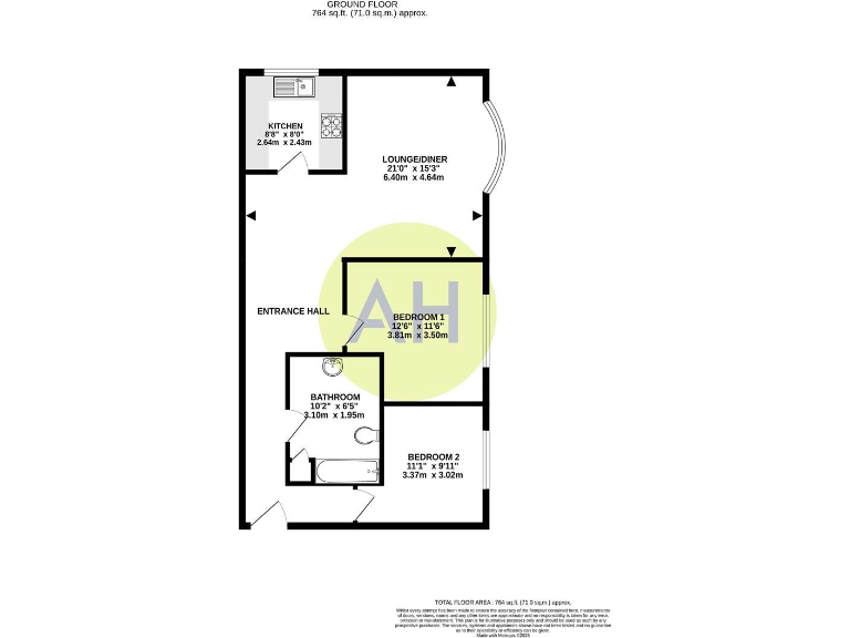
**Standout Features:**
- Spacious 764 sq. ft. ground floor apartment
- Two generous double bedrooms, large bathroom
- Modern fitted kitchen and large lounge
- Single garage and well-maintained communal grounds
- Gas central heating and double glazing for comfort
- Close proximity to Sale Town Centre and Brooklands Metrolink
- 999-year lease with affordable ground rent
This beautifully presented ground-floor apartment in the highly coveted St Leonards Court development offers an impressive 764 sq. ft. of living space, making it an exceptional opportunity for families, first-time buyers, or investors looking for rental potential in a prime location. Enjoy a spacious lounge bathed in natural light, a contemporary kitchen perfect for cooking and entertaining, and two generous double bedrooms that create a comfortable haven for relaxation.
With additional perks such as a single garage for secure parking and well-maintained communal grounds, residents can enjoy both convenience and tranquility. The apartment is ideally situated just steps away from Sale Town Centre and the Metrolink, ensuring easy access to local amenities, including outstanding schools like Sale Grammar School and Ashton-on-Mersey School.
While the property is in good condition overall, potential buyers should consider the service charge of £1200 annually and the average mobile signal. This is a fantastic opportunity to secure a comfortable living space in a desirable and affluent neighborhood—early viewing is highly recommended!
2 bedroom apartment for sale in Northenden Road, Sale, M33 — £250,000 • 2 bed • 1 bath • 733 ft²
2 bedroom flat for sale in Brooklands Road, Sale, M33 — £230,000 • 2 bed • 1 bath • 878 ft²
2 bedroom apartment for sale in Wrayton Lodge, Whitehall Road, Sale, M33 — £275,000 • 2 bed • 1 bath • 825 ft²
2 bedroom apartment for sale in Derbyshire Road, Sale, M33 — £200,000 • 2 bed • 1 bath • 753 ft²
2 bedroom apartment for sale in Harboro Grove, Sale, M33 — £210,000 • 2 bed • 1 bath • 691 ft²
2 bedroom apartment for sale in Charlton Drive, Sale, M33 — £215,000 • 2 bed • 1 bath • 589 ft²






























































