Modern two-bed with garden and parking, ready to move in.
Ground-floor two-bedroom flat with private rear garden
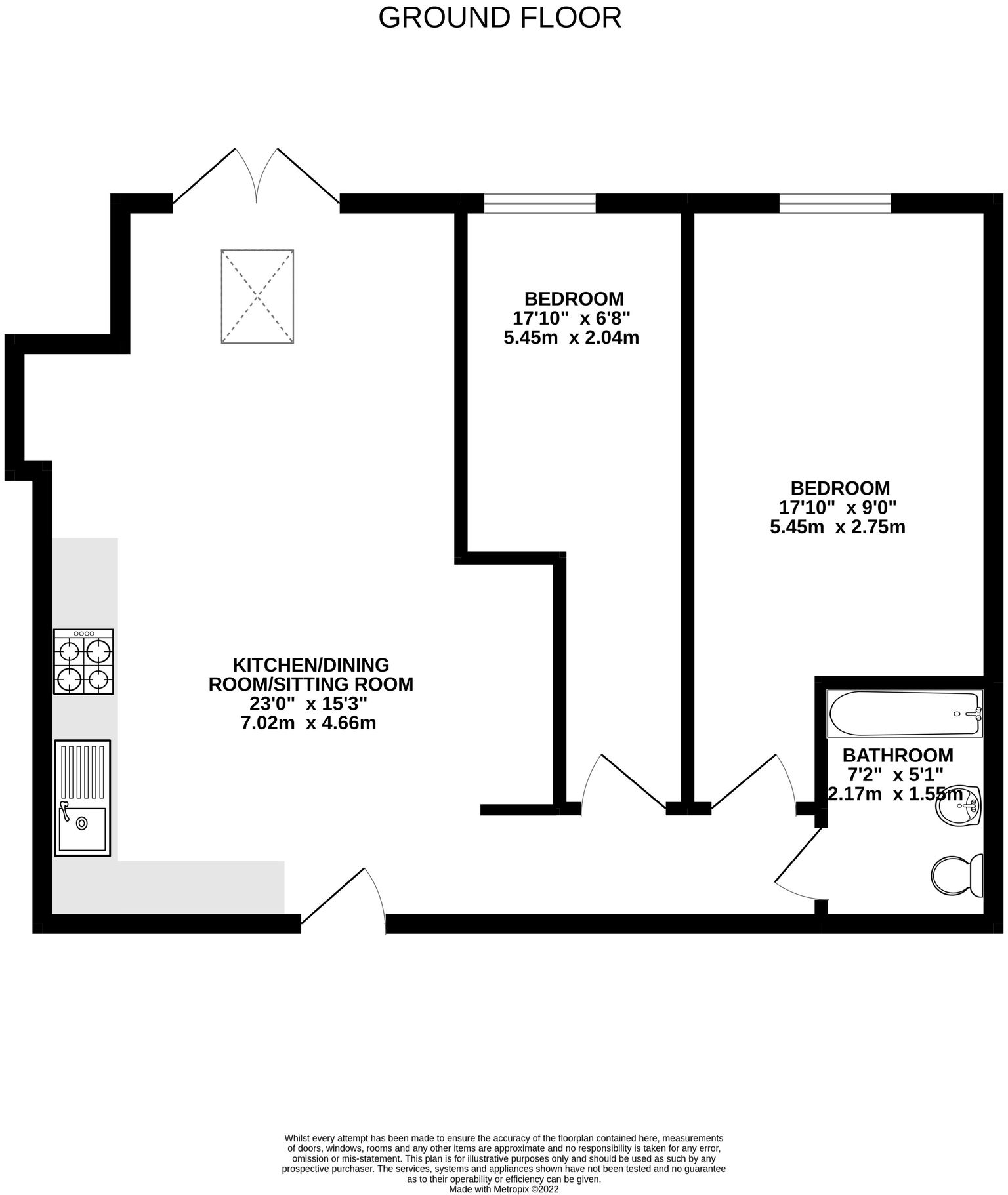
A bright, contemporary ground-floor flat with private garden and allocated parking, finished to a high standard and ready to move into. The open-plan kitchen/reception opens through double doors onto a patio and lawn — a rare outdoor space for a flat in this development.
Built in 2017 and recently renovated, the accommodation includes two well-proportioned bedrooms and a separate family bathroom across about 646 sq ft. Broadband and mobile signal are strong, and nearby Waddon station and tram stops provide straightforward links into central London and Wimbledon.
Practical points to note: the property is leasehold with 102 years remaining, an annual service charge of about £1,500 and ground rent of approximately £327. The wider area is an inner-city, culturally mixed neighbourhood with above-average local crime levels, so buyers should consider security and insurance costs.
This home will suit first-time buyers or couples seeking a low-maintenance, ready-made flat with outdoor space and parking, or investors looking for a modern, well-located two-bedroom in the Croydon area. Close local schools, shops, Duppas Hill Recreation Ground and good transport links add everyday convenience.
2 bedroom ground floor flat for sale in West Hill, SOUTH CROYDON, CR2 — £400,000 • 2 bed • 2 bath • 715 ft²
2 bedroom flat for sale in Croham Road, South Croydon, CR2 7BB, CR2 — £325,000 • 2 bed • 2 bath • 847 ft²
2 bedroom flat for sale in Rigby Close, CROYDON, Surrey, CR0 — £325,000 • 2 bed • 2 bath • 469 ft²
1 bedroom ground floor flat for sale in Clyde Road, Croydon, Surrey, CR0 — £240,000 • 1 bed • 1 bath • 506 ft²
Studio flat for sale in Duppas Hill Road, Green Gaze, CR0 — £160,000 • 1 bed • 1 bath • 420 ft²
2 bedroom flat for sale in Duppas Avenue, CROYDON, Surrey, CR0 — £275,000 • 2 bed • 1 bath • 698 ft²


















































