Large family home on a private quarter‑acre plot near Wivelsfield station.
Five bedrooms, over 2,450 sq ft of flexible accommodation
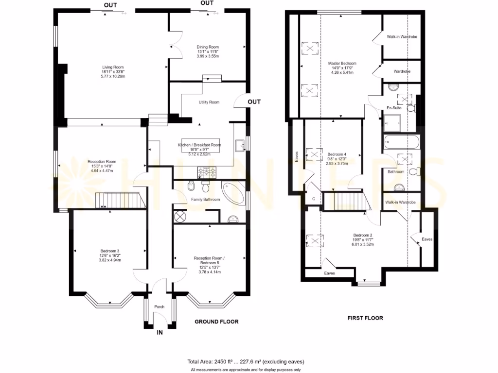
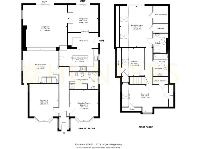
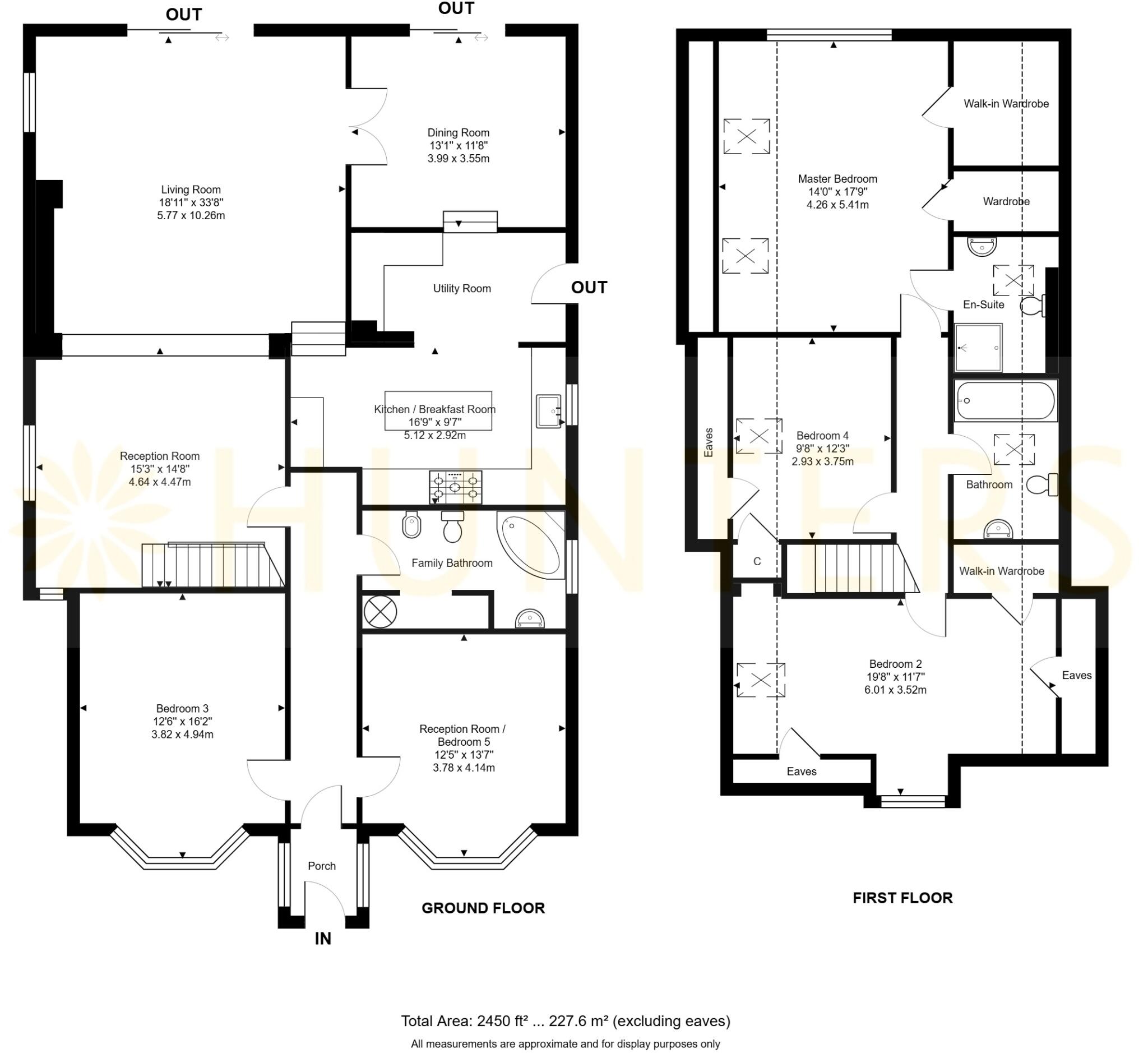
Spacious and flexible, this substantially extended five-bedroom detached house sits on a private 0.25-acre plot in a sought-after Burgess Hill location. The layout delivers over 2,450 sq ft of adaptable accommodation with two large reception rooms, separate dining room, and a modern kitchen with island — ideal for family life, home working, or multigenerational living.
The generous principal suite includes a walk-in wardrobe and en-suite, with two further double bedrooms and substantial eaves storage upstairs. Ground-floor bay-fronted rooms can function as additional bedrooms, studies or reception spaces. Practical additions include a separate utility room, detached garage/outbuilding, driveway parking and a large, secluded rear garden with paved terrace and mature tree screening.
The house offers clear potential to enhance value given the plot size and flexible plan, and benefits from an EPC C rating (potential B). It is well placed for local amenities: World’s End recreation ground and parade of shops are nearby, Manor Field Primary is within easy reach, and Wivelsfield Station is a five-minute walk with direct links to London and Brighton.
Buyers should note the property is a period build (pre-1900) with solid brick walls and later external insulation; some updating or reconfiguration may be wanted to meet modern finishes or personal taste. Overall this substantial home will suit families seeking space and privacy or buyers looking for a property with expansion and income potential (subject to consents).
5 bedroom detached house for sale in Valebridge Road, Burgess Hill, West Sussex, RH15 — £800,000 • 5 bed • 3 bath • 2450 ft²
5 bedroom semi-detached house for sale in Ravenswood Road, Burgess Hill, RH15 — £700,000 • 5 bed • 2 bath • 1961 ft²
5 bedroom detached house for sale in Wykeham Way, Burgess Hill, RH15 — £1,050,000 • 5 bed • 4 bath • 28740 ft²
5 bedroom detached house for sale in Gatehouse Lane, BURGESS HILL, RH15 — £795,000 • 5 bed • 2 bath • 1943 ft²
5 bedroom detached house for sale in Barley Drive, Burgess Hill, West Sussex, RH15 — £750,000 • 5 bed • 3 bath • 1542 ft²
5 bedroom semi-detached house for sale in Sheddingdean Close, BURGESS HILL, RH15 — £580,000 • 5 bed • 2 bath • 1168 ft²










































































































