High-spec single-storey living with large workshop and gated parking.
Three double bedrooms with principal ensuite and built-in wardrobes
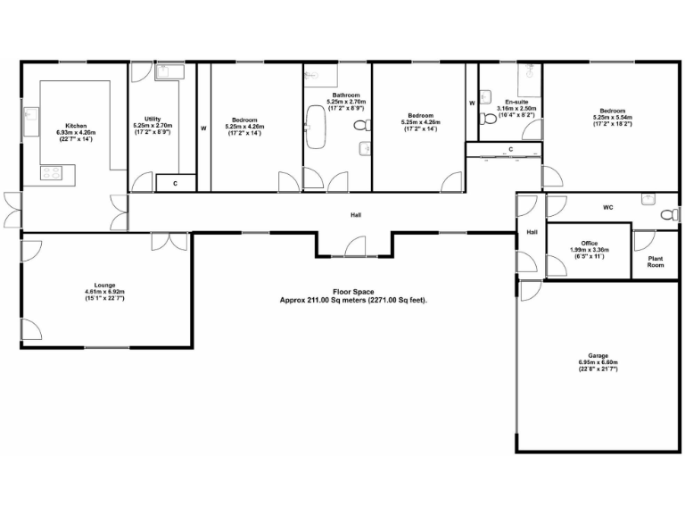
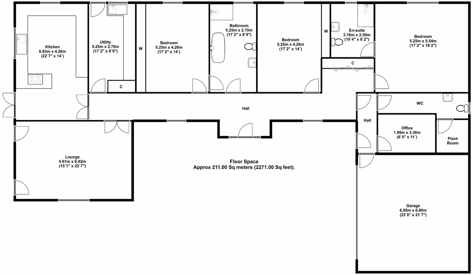
Set on a very large plot on the edge of Aglionby, this modern three-bedroom detached bungalow combines single-story living with substantial outbuildings and plentiful parking. The home is well presented throughout with high-spec finishes — porcelain-tiled hallway, granite kitchen worktops, integrated appliances, and an ensuite to the principal bedroom — making it move-in ready for a family or professional buyer.
The real standout is the recently constructed detached outbuilding and adjoining oversized garage, both with power and water, surfaced drive and electric doors. These spaces suit classic car storage, a workshop or home business; conversion to separate accommodation is a realistic prospect but would require the necessary planning consents. The site benefits from gated access, CCTV, and a low-maintenance AstroTurf garden, offering security and easy upkeep.
Practical strengths include rapid access to the A69 and M6, fast broadband, good local schools, and a B EPC rating. Buyers should note the property is sold freehold, council tax is above average, and any change of use for the outbuilding will need planning permission. Some particulars are vendor-approved and certain service and appliance entries remain untested, so purchasers should verify details during due diligence.
4 bedroom detached house for sale in Cardewlees, Carlisle, CA5 6LE, CA5 — £750,000 • 4 bed • 3 bath • 2350 ft²
3 bedroom detached bungalow for sale in Elm Garth, Wetheral, CA4 — £475,000 • 3 bed • 2 bath • 1779 ft²
3 bedroom detached house for sale in Crofton Hall Farm, Crofton, Thursby, Carlisle, Cumbria, CA5 — £400,000 • 3 bed • 2 bath • 1702 ft²
2 bedroom detached bungalow for sale in Thurstonfield, Carlisle, CA5 — £245,000 • 2 bed • 1 bath • 884 ft²
3 bedroom detached house for sale in Cairn Crescent, Corby Hill, Carlisle, CA4 — £285,000 • 3 bed • 1 bath • 1295 ft²
3 bedroom detached bungalow for sale in Westlinton, Carlisle, CA6 — £375,000 • 3 bed • 1 bath • 1227 ft²










































































































