Single-level character home with generous plot and private garage.
South-facing wrap-around garden with countryside and coastal views
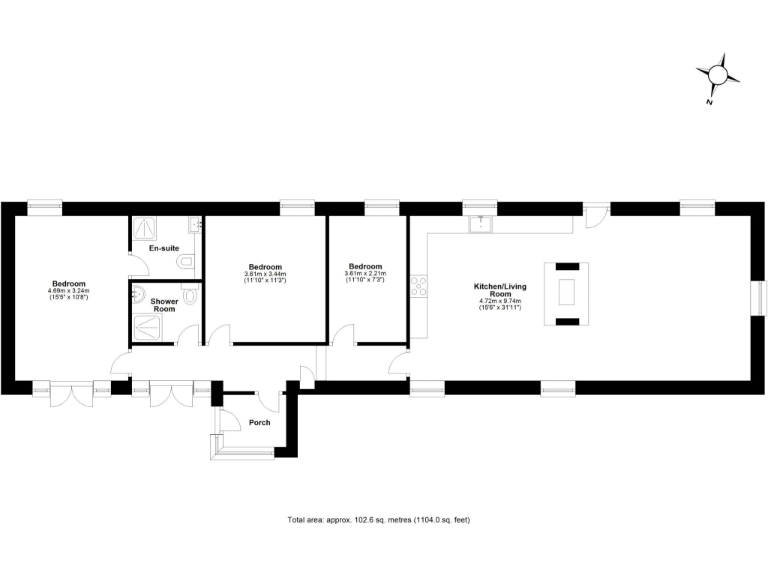
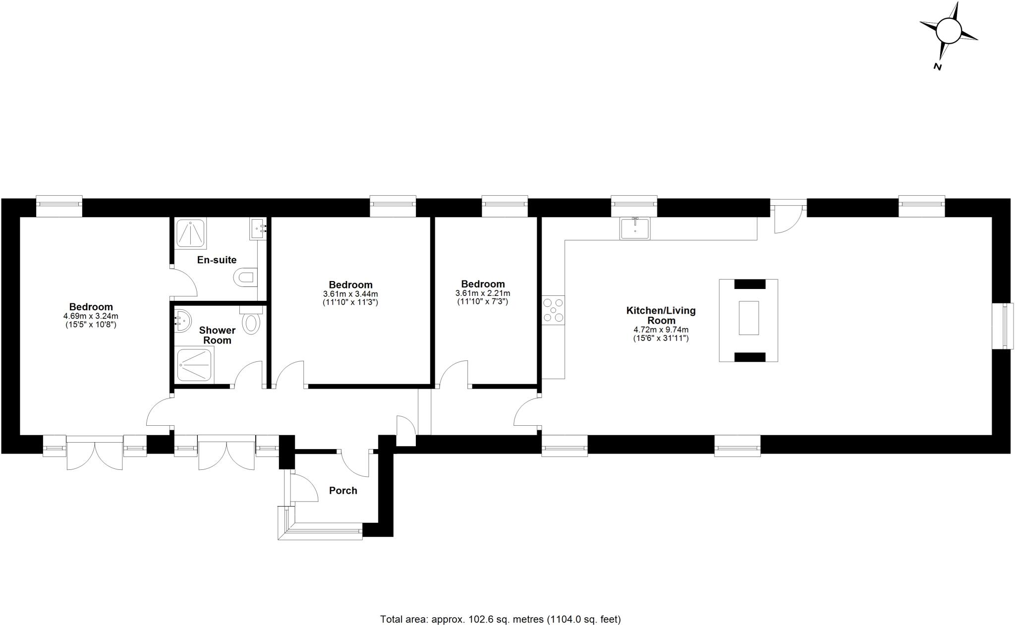
Set within a small steading in Hartlaw, Old Stable is a detached single‑storey barn conversion offering 1,104 sq ft of comfortable, characterful living. Vaulted ceilings and exposed beams create a dramatic open-plan kitchen/dining/sitting room anchored by a dual-aspect log-burning stove, while large arched windows in the master bedroom frame countryside and distant coastal views. The updated shaker-style kitchen includes integrated appliances and an electric Aga Rangemaster.
The property works well for families or downsizers who value one‑level living: there are three bedrooms (one ensuite) plus a separate shower room, and a third room that can double as a study. The south‑facing wrap-around garden and large plot give good outdoor space, and private parking alongside a detached garage adds practical convenience. Broadband and mobile signal are reported as fast and excellent respectively.
Buyers should note a few material points: the EPC is D (68), council tax is above average, and the property is served by a shared water treatment plant managed via a local management company (service charge circa £500–£600 per annum). A restrictive covenant prohibits holiday letting, which affects short‑term rental potential. Overall, this is a rare detached barn conversion in a very quiet hamlet, blending character, views and practical single-level living within reach of Alnwick and the coast.
2 bedroom barn conversion for sale in Barn End, Hartlaw, Northumberland, NE65 — £365,000 • 2 bed • 2 bath • 1280 ft²
3 bedroom barn conversion for sale in Thirston Court, West Moor, Morpeth, NE65 9QE, NE65 — £465,000 • 3 bed • 3 bath • 2525 ft²
2 bedroom barn conversion for sale in Butterchurn, Cavil Head, Acklington, Morpeth, Northumberland, NE65 — £475,000 • 2 bed • 2 bath • 1378 ft²
4 bedroom barn conversion for sale in Sturton Grange, Warkworth, Morpeth, Northumberland, NE65 — £775,000 • 4 bed • 4 bath • 3105 ft²
3 bedroom terraced house for sale in Sturton Grange Cottages, Warkworth, Morpeth, NE65 — £399,000 • 3 bed • 1 bath • 871 ft²
4 bedroom property for sale in Farm Court, Druridge Bay, NE61 — £425,000 • 4 bed • 2 bath • 1576 ft²


















































































































