Large four-bedroom chalet bungalow near Cromer beach with garage and south garden..
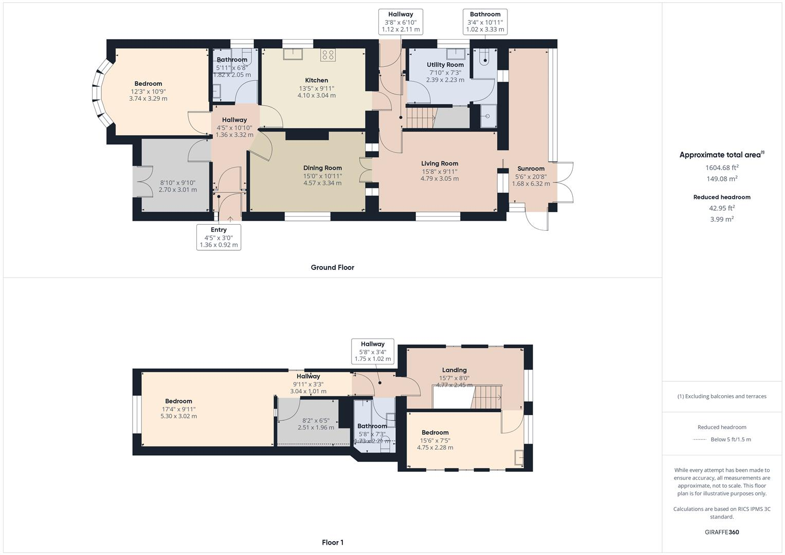
- Four double bedrooms, including large first-floor principal with sea views
- 31ft lounge/diner plus separate conservatory and sunroom
- Fitted kitchen with separate utility room
- South-facing fully enclosed rear garden, low maintenance
- Driveway and single garage provide private parking
- Mains gas boiler with underfloor heating; double glazing
- Requires modernisation; dated decor and some external maintenance needed
- Local area shows higher deprivation; may affect long-term resale pace
Placed a short walk from Cromer’s beach and town amenities, this detached chalet bungalow offers generous living space across two levels and sea glimpses from the first-floor principal bedroom. The layout suits a growing family or retired couple who want roomy ground-floor accommodation plus additional upstairs bedrooms for guests or a home office.
Internally the property features a 31ft lounge/diner, separate fitted kitchen with utility, conservatory/summer room and four double bedrooms. Practical details include mains gas central heating with a boiler and underfloor heating, double glazing and a garage with driveway. Outside, the rear garden faces south and is fully enclosed — low maintenance with a large garden shed.
The house will reward updating: décor and some fittings are dated and the garden and some external areas appear in need of attention. EPC indicates current rating C (71) with potential to improve to B (85). The local area is in a more deprived classification, which may affect long-term resale dynamics compared with more affluent coastal pockets.
Overall this is a spacious, well-located coastal home with strong family potential and clear scope for modernisation to realise added value. Buyers seeking immediate turnkey finish should note the need for cosmetic and some updating works; investors or DIY families will find room sizes and location attractive.
4 bedroom detached bungalow for sale in Arbor Hill, Cromer, NR27 — £650,000 • 4 bed • 3 bath • 1307 ft²
3 bedroom detached bungalow for sale in Clifton Park, Cromer, NR27 — £250,000 • 3 bed • 1 bath • 773 ft²
3 bedroom bungalow for sale in Roughton Road, Cromer, NR27 — £350,000 • 3 bed • 1 bath • 1102 ft²
2 bedroom detached house for sale in Beach Road, Cromer, NR27 — £375,000 • 2 bed • 1 bath • 589 ft²
3 bedroom detached house for sale in Arbor Road, Cromer, NR27 — £675,000 • 3 bed • 3 bath • 2274 ft²
2 bedroom bungalow for sale in Greenfield Close, Cromer, Norfolk, NR27 — £290,000 • 2 bed • 1 bath • 839 ft²






















































































