**Standout Features:**
- Stylish 2-bedroom, 2-bathroom apartment
- Master bedroom with en-suite shower
- Open-plan kitchen with integrated appliances
- Private balcony for outdoor relaxation
- 24-hour concierge service and lift access
- Excellent transport links to central London
- Nearby amenities including shops, cafes, and entertainment hotspots
**Notable Concerns:**
- Property is located in an area with very high crime rates
- Leasehold tenure may entail certain restrictions or fees
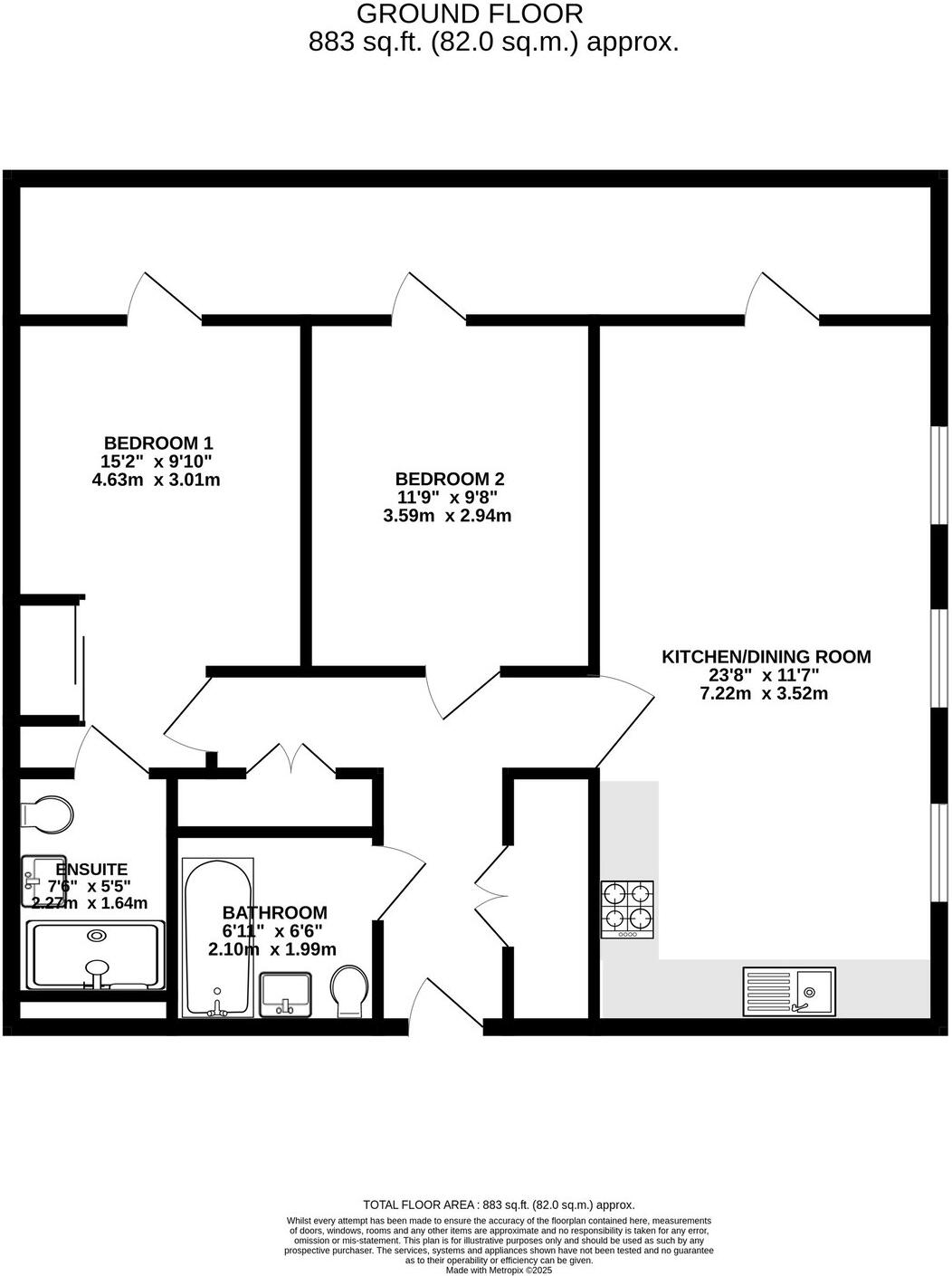
Discover a stylish urban retreat in the heart of Woolwich with this modern two-bedroom apartment priced at £440,000. Offering 883 square feet of bright, open-plan living space, the home boasts a sleek kitchen with high-gloss white units, seamlessly flowing into a spacious reception area that opens onto a private balcony—ideal for morning serenity or evening unwinding. The master suite features its own en-suite shower room, complemented by a family bathroom serving the second double bedroom.
With a 24-hour concierge, secure entry, and lift access, this apartment is perfect for professionals, couples, or sharers looking for convenience and comfort. Enjoy exceptional connectivity from Woolwich Arsenal and Woolwich Station, providing quick access to Canary Wharf, Liverpool Street, and beyond. Surrounded by a vibrant community filled with shops, restaurants, and local attractions like Woolwich Works, you'll relish the cosmopolitan lifestyle it offers.
However, consider the high crime rate in the area when deliberating your investment. Whether you're a first-time buyer or an investor eyeing rental potential, this property presents an excellent opportunity in an evolving neighborhood. Don't miss your chance to secure this urban gem!
2 bedroom flat for sale in Victory Parade, Plumstead Road, London, SE18 — £475,000 • 2 bed • 2 bath • 802 ft²
2 bedroom flat for sale in Wellington Street, London, SE18 — £550,000 • 2 bed • 1 bath • 988 ft²
2 bedroom flat for sale in Love Lane, London, SE18 — £325,000 • 2 bed • 1 bath • 662 ft²
2 bedroom apartment for sale in Naval House, 6 Victory Parade, Plumstead Road, London, SE18 6FN, SE18 — £510,000 • 2 bed • 1 bath • 649 ft²
2 bedroom flat for sale in Love Lane, London, SE18 — £390,000 • 2 bed • 2 bath • 820 ft²
1 bedroom flat for sale in Royal Carriage Mews, London, SE18 — £325,000 • 1 bed • 1 bath • 469 ft²






















































