Spacious home near Canary Wharf with balcony and two ensuites.
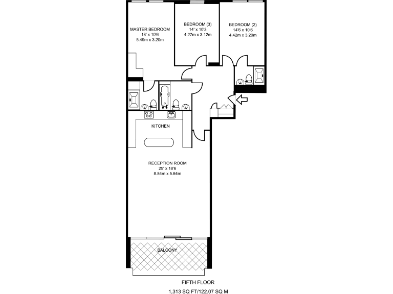
Large 1,313 sq ft flat with generous 29' reception room
This spacious 1,313 sq ft flat in Marmara Apartments offers sizeable living throughout and flexible family accommodation. The 29' reception creates a light, social hub with balcony access, while an open-plan kitchen includes integrated appliances and contemporary finishes.
The principal suite and second bedroom each have en suite shower rooms, supported by a separate family bathroom — practical for shared households or visitors. Built 2003–2006 with double glazing, the home benefits from modern construction standards and fast broadband, and sits close to Canary Wharf amenities, shops and leisure facilities.
Notable practical points: heating is electric with room heaters rather than gas central heating, and the property is leasehold — buyers should confirm remaining term and service charges. Overall, this is a roomy, low-flood-risk apartment well suited to families or professionals seeking convenient access to central docks-side facilities.
3 bedroom apartment for sale in Western Gateway, London, E16 — £625,000 • 3 bed • 3 bath • 1324 ft²
1 bedroom flat for sale in Western Gateway, Royal Docks, London, E16 — £350,000 • 1 bed • 1 bath • 558 ft²
3 bedroom flat for sale in Western Gateway, Royal Victoria Docks, E16 — £715,000 • 3 bed • 2 bath • 1144 ft²
3 bedroom apartment for sale in Alaska Apartments, Western Gateway, London, E16 — £750,000 • 3 bed • 2 bath • 1140 ft²
3 bedroom apartment for sale in Wray Avenue, London, E16 — £590,000 • 3 bed • 2 bath • 1015 ft²
3 bedroom flat for sale in Royal Docks, Royal Docks, London, E16 — £635,000 • 3 bed • 2 bath • 1154 ft²














































































































































































































