Spacious family home with large private garden and renovation potential.
Six bedrooms and three reception rooms with strong period features
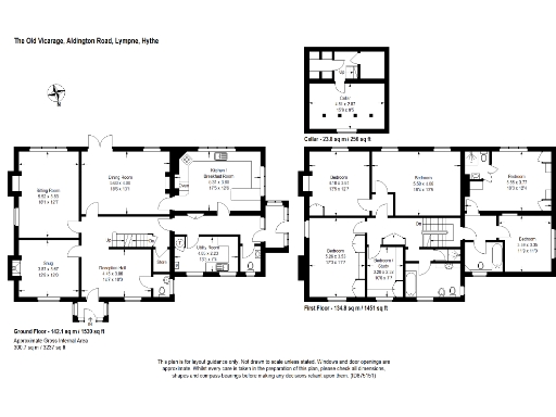
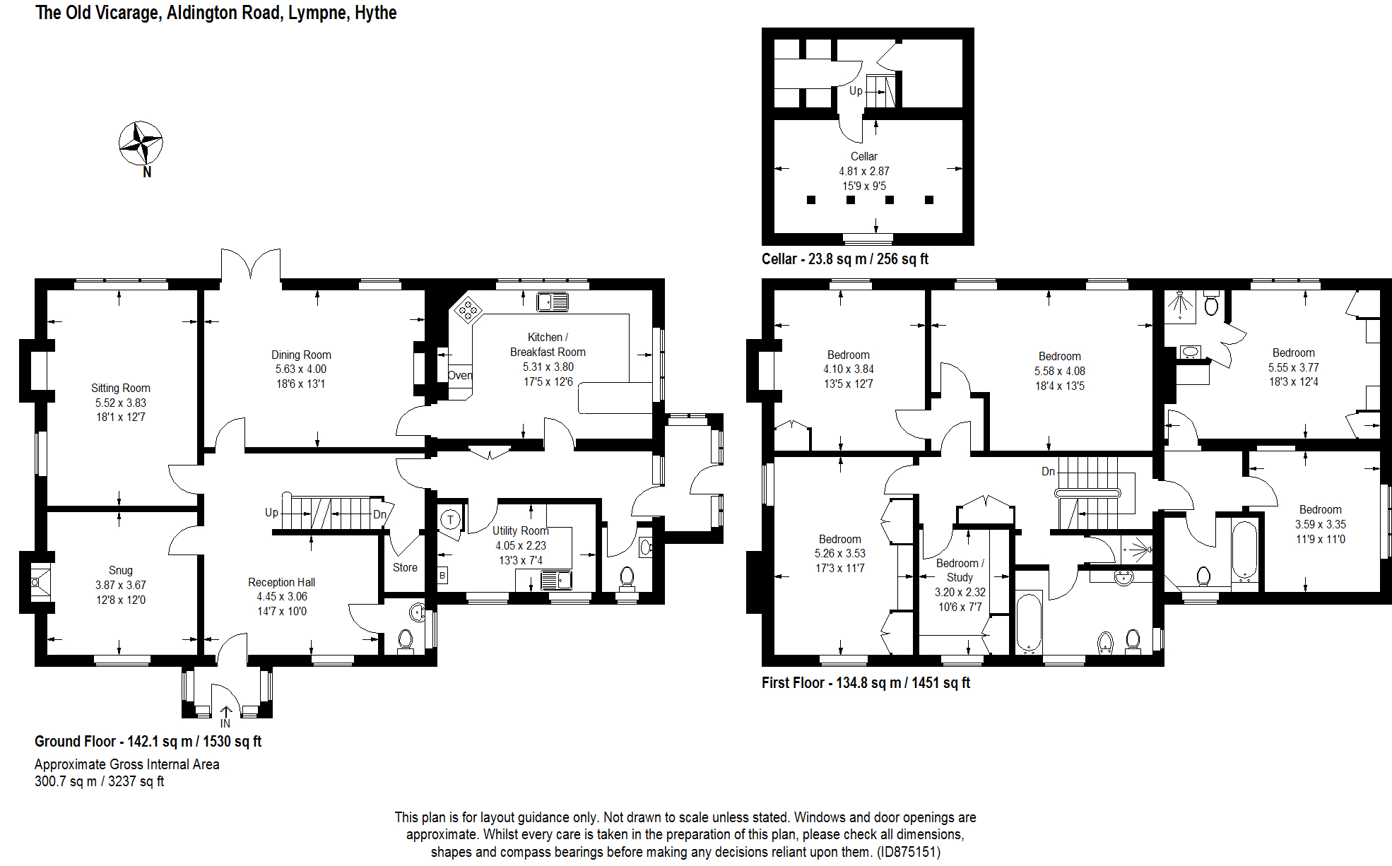
An unlisted Victorian vicarage dating from circa 1860, this substantial six-bedroom detached house sits on a generous, private plot in the heart of Lympne village. The home retains strong period character — high ceilings, tall sash windows, deep skirtings, dado rails, original shutters and a number of open fireplaces — giving immediate sense of provenance and space across three reception rooms and large bedrooms.
The grounds are a major asset: a walled courtyard with built-in BBQ, extensive lawns, a south-facing terrace and mature trees provide privacy and safe outdoor space for family life. Practical features include useful cellarage, off-street parking with scope for a new driveway (subject to planning), and a rainwater collection chamber with pump for garden watering.
Being unlisted, the property offers flexibility for reconfiguration and modernisation to suit contemporary family living; however it does need updating in places. Some rooms display dated décor and the kitchen and bathrooms would benefit from improvement to match the house’s proportions and finishes. Buyers should factor renovation works and associated costs into their plans.
The location is quietly convenient: village amenities, primary school and pub are within easy walking distance, with countryside walks, the Royal Military Canal and Port Lympne nearby. Westenhanger station and M20 (J11) are about two miles away, offering good regional and commuter connections. The sale is chain free, enabling a straightforward purchase for a buyer seeking a character-filled family home with scope to add value.
4 bedroom semi-detached house for sale in The Old Vicarage, Boughton Hill, Dunkirk, ME13 — £1,000,000 • 4 bed • 2 bath • 2700 ft²
6 bedroom detached house for sale in Pluckley Road, Little Chart, Kent, TN27 — £1,895,000 • 6 bed • 3 bath • 4659 ft²
6 bedroom detached house for sale in Stalisfield Green, Stalisfield, Faversham, Kent, ME13 — £2,250,000 • 6 bed • 5 bath • 5000 ft²
4 bedroom detached house for sale in Stone Street, Lympne, Hythe, Kent, CT21 — £830,000 • 4 bed • 3 bath • 2422 ft²
4 bedroom detached house for sale in The Street, Womenswold, Canterbury, Kent, CT4 — £650,000 • 4 bed • 2 bath • 2740 ft²
5 bedroom semi-detached house for sale in High Street, Lyminge, Folkestone, Kent, CT18 — £650,000 • 5 bed • 2 bath • 1789 ft²


































































































