**Standout Features:**
- Superb split-level conversion in a Victorian semi-detached property
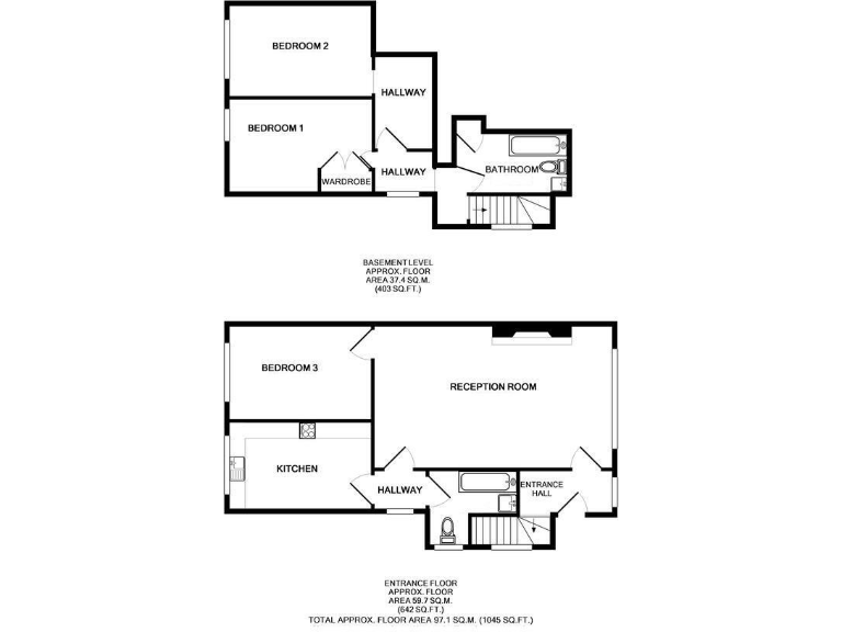
- Impressive 21' living room with feature fireplace
- Three spacious double bedrooms, two bathrooms (one shower room)
- Modern fitted kitchen
- Private entrance and landscaped rear garden with a sunny south-westerly aspect
- Chain-free sale, EPC rating of band D
- Excellent access to Bromley town centre and transportation links
This remarkable split-level flat offers an abundance of space and modern comforts, making it ideal for families or savvy investors. With an entrance that leads to a generous 21' living room, you'll be welcomed by a cozy ambiance enhanced by a traditional fireplace and large windows. The well-appointed kitchen features modern fixtures, setting the stage for culinary creations.
The upper floor houses an adaptable double bedroom, perfect for a home office, while the lower level boasts two further double bedrooms and a luxuriously designed shower room. A private terraced garden provides a secluded retreat, surrounded by mature trees for added privacy.
Located within walking distance to Bromley High Street's diverse amenities and excellent transport links, this property presents a fantastic opportunity for comfortable urban living. Enjoy the benefit of being chain-free and with nearly 989 years remaining on the lease, this property is a must-see. Given its expansive layout, outstanding location, and inviting outdoor spaces, don't miss your chance to make this charming residence your new home!
3 bedroom semi-detached house for sale in Weston Road, Bromley, BR1 — £525,000 • 3 bed • 1 bath • 1065 ft²
2 bedroom flat for sale in Highland Road, Bromley, BR1 — £375,000 • 2 bed • 1 bath • 872 ft²
1 bedroom flat for sale in Madeira Avenue, Bromley, BR1 — £325,000 • 1 bed • 1 bath • 564 ft²
2 bedroom flat for sale in Oaklands Road, Bromley, BR1 — £450,000 • 2 bed • 1 bath • 973 ft²
1 bedroom apartment for sale in London Road, Bromley, BR1 — £250,000 • 1 bed • 1 bath • 431 ft²
2 bedroom flat for sale in Oaklands Road, Bromley, Kent, BR1 — £325,000 • 2 bed • 1 bath • 732 ft²






























































