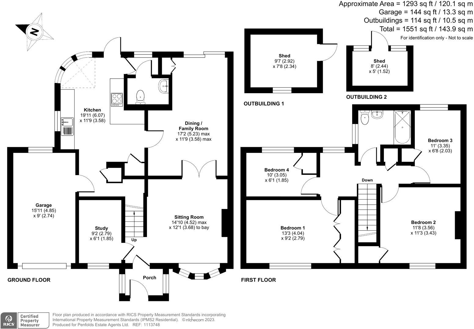
**Standout Features:**
- Charming semi-detached period cottage built in the 1800s
- 4 spacious bedrooms, 1 bathroom
- Energy-efficient with solar panels and EPC rating of B
- Central village location with private parking and EV charge point
- Beautiful garden and patio area for outdoor entertaining
- Close proximity to local amenities including schools, health centre, and shops
**Potential Concerns:**
- Solid brick construction with no insulation (assumed), which may affect energy efficiency
- Council tax band F indicates higher annual costs
**Summary:**
Discover the timeless charm of this semi-detached period cottage, nestled in the heart of Loxwood village. With four bedrooms and a family-friendly layout spanning 1,293 sq ft, this home combines historical character with modern conveniences such as a bespoke kitchen and a stylishly renovated bathroom. Solar panels not only enhance its eco-friendliness, but the home’s efficient heating system ensures comfort year-round. The generous garden and patio invite entertaining or simply enjoying peaceful afternoons while watching the children play.
Located just a short stroll from essential local amenities, including a school, health centre, and quaint shops, it offers an ideal lifestyle for families who value community and proximity to nature. While the lack of insulation may pose some considerations, the property’s overall appeal, character, and potential for personal touches promise a delightful living experience. Don't miss the opportunity to make this beautiful cottage your family's new home—properties like this are rare in such a desirable area!
4 bedroom detached house for sale in Alfold Bars, Loxwood, Billingshurst, RH14 — £750,000 • 4 bed • 1 bath • 1850 ft²
3 bedroom end of terrace house for sale in Nicholsfield, Loxwood, RH14 — £500,000 • 3 bed • 2 bath • 1560 ft²
5 bedroom detached house for sale in Plaistow Road, Loxwood, Billingshurst, West Sussex, RH14 — £800,000 • 5 bed • 3 bath • 1945 ft²
3 bedroom detached house for sale in Brewhurst Lane, Loxwood, RH14 — £1,125,000 • 3 bed • 2 bath • 2327 ft²
4 bedroom detached house for sale in Station Road, Loxwood, RH14 — £1,000,000 • 4 bed • 2 bath • 1528 ft²
4 bedroom chalet for sale in Plaistow Road, Loxwood, RH14 — £775,000 • 4 bed • 2 bath • 1803 ft²






























































