**Standout Features:**
- Well-proportioned two-bedroom ground floor maisonette
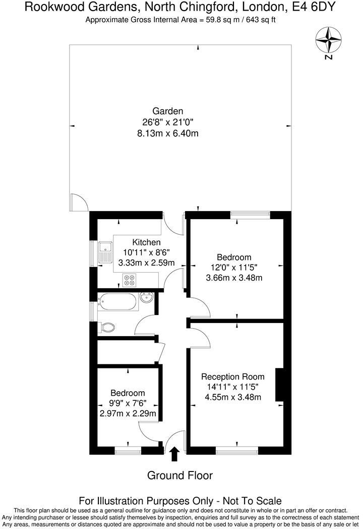
- Private front door and expansive rear garden (approx. 8.13m x 6.40m)
- Spacious living room with mid-century modern fireplace
- Oak-style fitted kitchen and functional bathroom
- Double glazing and gas central heating
- Extended lease with approximately 961 years remaining
- Excellent transport links to Liverpool Street and Walthamstow Central
- Surrounded by local amenities, parks, and Epping Forest
This charming two-bedroom ground floor maisonette in North Chingford offers a perfect blend of comfort and convenience, making it an ideal choice for first-time buyers or those looking to downsize. Situated in a quiet cul-de-sac, this property boasts a spacious living room complete with a feature fireplace, an oak-style fitted kitchen, and a sizable private garden perfect for outdoor relaxation or entertainment. Its long lease of approximately 961 years adds exciting potential for future homeowners.
Located just a short walk from Station Road, you’ll enjoy easy access to a variety of shops, cafes, and restaurants, as well as excellent public transport links, ideal for commuting into central London. While the property’s cavity walls are assumed to lack insulation, it retains great potential for those looking to invest in energy efficiency upgrades. Don’t miss out on this opportunity; schedule a viewing today to envision your future in this delightful home!
2 bedroom maisonette for sale in Woodland Road, North Chingford, E4 — £350,000 • 2 bed • 1 bath • 432 ft²
2 bedroom maisonette for sale in Forest Side, North Chingford, E4 — £375,000 • 2 bed • 1 bath • 529 ft²
2 bedroom apartment for sale in Sewardstone Gardens, Chingford, E4 — £350,000 • 2 bed • 1 bath • 756 ft²
2 bedroom flat for sale in Mansfield Hill, Chingford, E4 — £335,000 • 2 bed • 1 bath • 708 ft²
2 bedroom maisonette for sale in Hall Gardens, Chingford, E4 — £325,000 • 2 bed • 1 bath • 610 ft²
3 bedroom maisonette for sale in Heathcote Grove, Chingford, E4 — £425,000 • 3 bed • 2 bath • 1007 ft²










































































