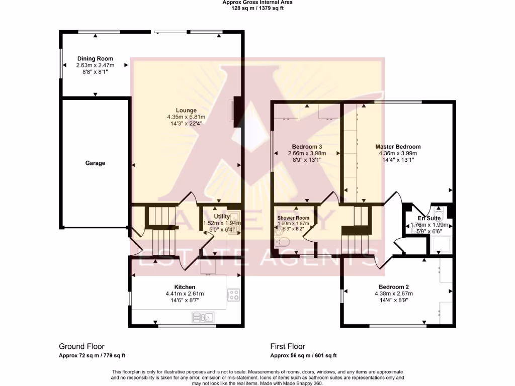
Three double bedrooms, sunny west garden and parking for two cars.
Three double bedrooms, one with en suite and built-in storage
No onward chain — ready for a quick move
West-facing rear garden with good afternoon sun
Garage plus private driveway for two cars
EPC rating D — opportunity to improve energy efficiency
Council Tax Band E — above-average running costs
Dated living room décor and fireplace; needs modernisation
Freehold property built c.1983–1990, assumed cavity wall insulation
Set on a generous plot in Ashcombe Park, this three-bedroom freehold house offers immediate move-in potential with no onward chain. The property features three double bedrooms (one with en suite), extended lounge/diner, fitted kitchen/breakfast room and useful utility. A garage and private driveway provide off-street parking for two cars; the west-facing rear garden receives plenty of afternoon sun.
Practical strengths include mains gas heating with a boiler and radiators, double glazing and an assumed insulated cavity wall. The layout suits a growing family seeking space and outdoor privacy close to good primary schools and regular bus links to Weston town centre. Broadband speeds are fast and local crime levels are low.
Buyers should note some visible dated elements and cosmetic wear typical of a post‑war/1980s build: the living room décor and fireplace look of an earlier era and would benefit from modernization to match buyer tastes. The EPC is rated D and the property sits in Council Tax band E, which is above average for the area. These factors affect running costs and may warrant energy improvements.
Overall this is a large, well-proportioned detached home with solid structural characteristics and clear potential for upgrading. It will appeal most to families wanting space, parking and a sunny garden, or buyers ready to invest modestly to refresh interiors and improve energy performance.
3 bedroom detached house for sale in Earlham Grove, BS23 — £330,000 • 3 bed • 2 bath • 673 ft²
3 bedroom detached house for sale in Manor Road, BS23 — £360,000 • 3 bed • 1 bath • 972 ft²
3 bedroom detached house for sale in Forest Drive, Weston-super-Mare, Somerset, BS23 — £400,000 • 3 bed • 1 bath • 1102 ft²
3 bedroom detached house for sale in Glastonbury Way, BS22 — £315,000 • 3 bed • 2 bath • 969 ft²
3 bedroom end of terrace house for sale in Snowdon Vale, Weston-super-Mare, Somerset, BS23 — £260,000 • 3 bed • 1 bath • 795 ft²
4 bedroom semi-detached house for sale in Ashcombe Road, Weston-super-Mare - NO CHAIN, BS23 — £269,500 • 4 bed • 1 bath • 1262 ft²










































































































