Quiet cul-de-sac detached house with garden, garage and no onward chain.
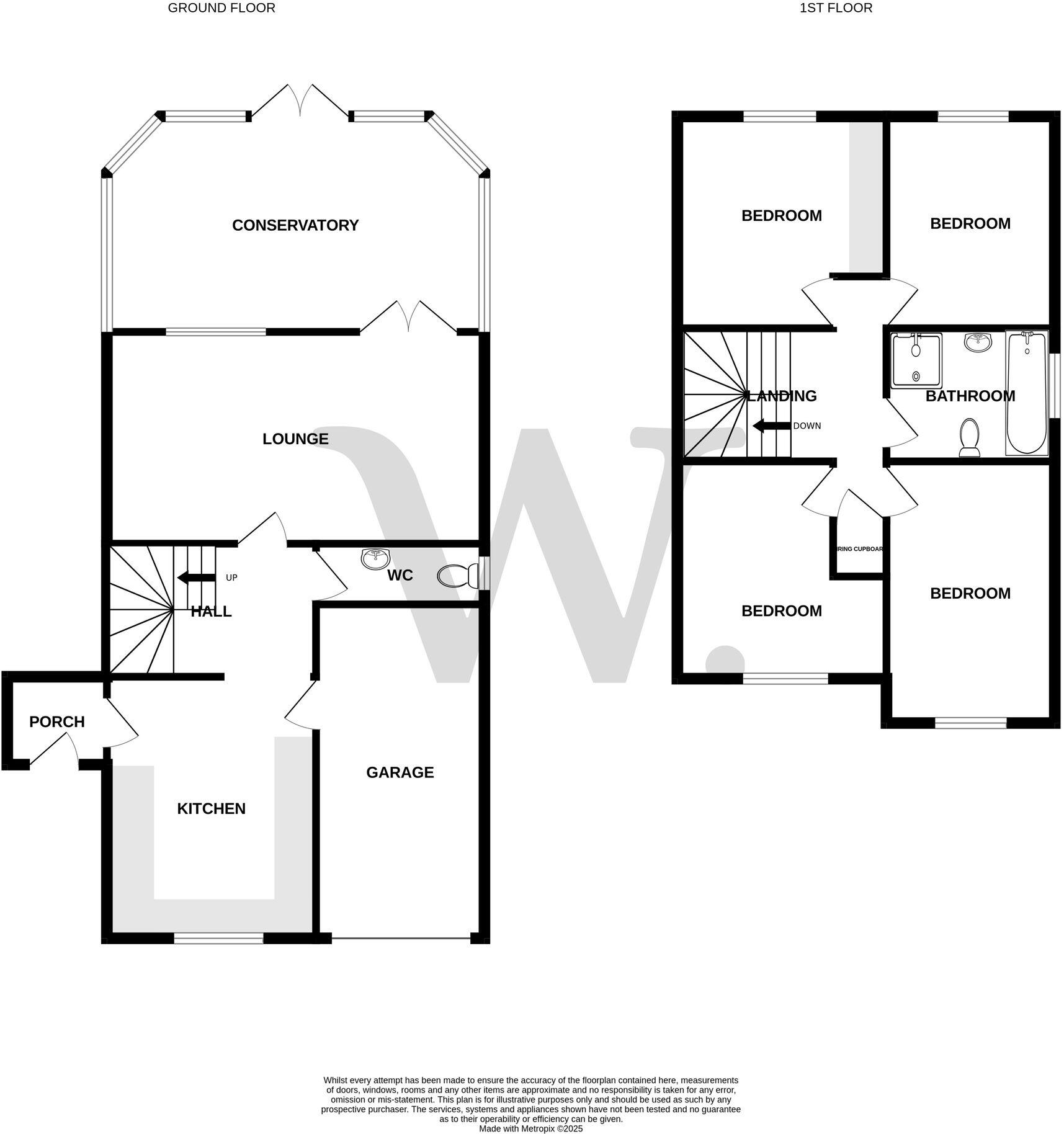
Four double bedrooms off the landing
Set at the end of a quiet cul-de-sac, this light detached family home offers a practical layout for growing families. The ground floor has a bright kitchen leading to a lounge and conservatory, creating flexible day-to-day living and direct access to a private rear garden. Four double bedrooms are arranged off the landing, served by a single family bathroom plus a separate cloakroom.
The property includes a single garage and off-street parking, mains gas central heating and double glazing (install date unknown). At about 990 sq ft, the house is compact for a four-bedroom detached home but offers scope to reconfigure or modernise to suit contemporary family life. Broadband is fast and mobile signal is excellent, making the home suitable for remote working and connected family routines.
Practical considerations: the EPC is graded E and the interior will benefit from updating, so buyers should allow for refurbishment costs. The local area has pockets of deprivation and average crime levels, though good and outstanding primary and secondary schools are nearby. Sold with no onward chain, this property will suit buyers seeking a ready-to-move-in base to update and personalise without a lengthy sale process.
4 bedroom detached house for sale in Three Corner Drive, Norwich, NR6 — £340,000 • 4 bed • 1 bath • 1369 ft²
4 bedroom detached house for sale in Sienna Mews, Norwich, NR1 — £300,000 • 4 bed • 1 bath • 991 ft²
4 bedroom detached house for sale in Elm Grove Lane, Norwich, Norfolk, NR3 — £390,000 • 4 bed • 1 bath • 1243 ft²
4 bedroom detached house for sale in Sutherland Avenue, Norwich, NR6 — £450,000 • 4 bed • 3 bath • 1540 ft²
4 bedroom detached house for sale in Le Strange Close, Norwich, NR2 — £775,000 • 4 bed • 2 bath
4 bedroom detached house for sale in Old Lakenham Hall Drive, Norwich, Norfolk, NR1 — £310,000 • 4 bed • 1 bath • 1167 ft²


































































