Extended three-bed family home with large southwest garden backing onto open fields Fulford catchment.
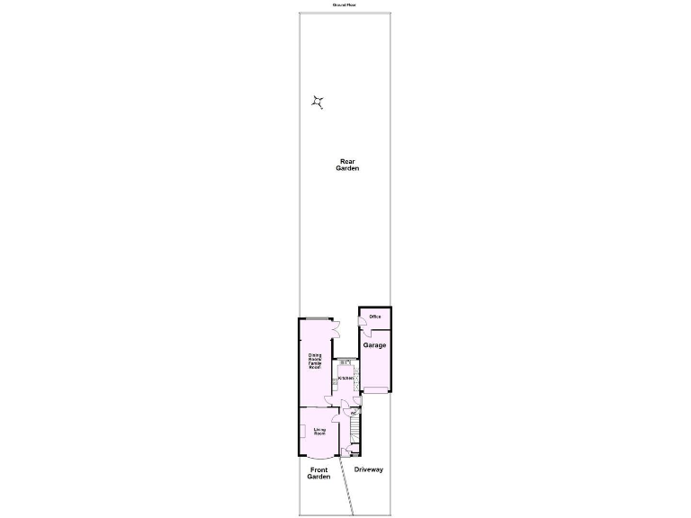
Southwesterly-facing large two-tier garden backing onto open fields
Single garage plus extended external office — flexible parking/workspace
Living room with oak flooring and log-burning stove on slate hearth
Modern kitchen with quartz worktops and integrated appliances
Three good-sized bedrooms; one with walk-in wardrobe and en-suite plumbing
Only one family bathroom — may be limiting for larger families
EPC: to be confirmed; broadband speeds reported as slow
Fulford School catchment; excellent village amenities and low crime
This extended three-bedroom semi-detached house is arranged over two levels and offers practical family living with a generous, two-tier southwesterly garden that backs onto open fields. Living spaces flow from a living room with oak flooring and a log burner through to a dining room and extended family room with direct garden access — ideal for indoor-outdoor family time. The modern kitchen features quartz worktops and integrated appliances for everyday convenience.
Sleeping accommodation comprises three good-sized bedrooms and a contemporary house bathroom with a shower over the bath. One bedroom has a walk-in wardrobe with plumbing ready for a potential en-suite — useful if you want to add a second bathroom. Outside, a block-paved driveway, gated entrance and attached single garage with an extended external office create versatile parking and home-working options.
Practical notes: broadband speeds are reported as slow, and the energy performance certificate is to be confirmed (EPC: tbc). There is a single family bathroom only, which may be a constraint for larger households. Otherwise, the property is presented in good condition and sits in a very affluent, low-crime village location with excellent local amenities, sports clubs and Fulford School catchment.
Overall, this is a straightforward, well-presented family home that combines countryside outlooks and a large private garden with useful outbuildings and parking. Buyers seeking ready-to-move-in accommodation with potential to add an en-suite or improve services (broadband/EPC) will find real appeal here.
4 bedroom detached house for sale in Holly Tree Lane, Dunnington, York YO19 5RD, YO19 — £425,000 • 4 bed • 1 bath • 1325 ft²
4 bedroom detached house for sale in Kerver Lane, Dunnington, York YO19 5SL, YO19 — £575,000 • 4 bed • 2 bath • 2177 ft²
4 bedroom detached house for sale in Holly Tree Lane, Dunnington, York YO19 5RD, YO19 — £650,000 • 4 bed • 2 bath • 2781 ft²
4 bedroom detached house for sale in Eastfield Lane, Dunnington, York YO19 5ND, YO19 — £495,000 • 4 bed • 1 bath • 1316 ft²
4 bedroom detached house for sale in Hull Road, Dunnington, York, YO19 5LR, YO19 — £475,000 • 4 bed • 2 bath • 1421 ft²
4 bedroom detached house for sale in The Manor Beeches, Dunnington, York YO19 5pX, YO19 — £475,000 • 4 bed • 2 bath • 1663 ft²














































































































