### Standout Features:
- **Mixed-Use Potential**: Includes two occupied commercial units and two successful holiday let apartments.
- **Spacious Owner’s Accommodation**: Three double bedrooms with a large lounge and kitchen/dining area.
- **Additional Income Opportunity**: An annex currently undergoing renovation can be customized for further rental income.
- **Prime Location**: Situated in the heart of historic Totnes, surrounded by a myriad of local amenities.
- **Freehold and Grade II Listed**: Offers architectural charm with the potential for future renovations.
### Summary:
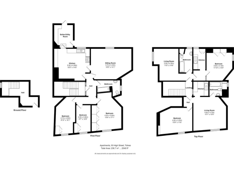
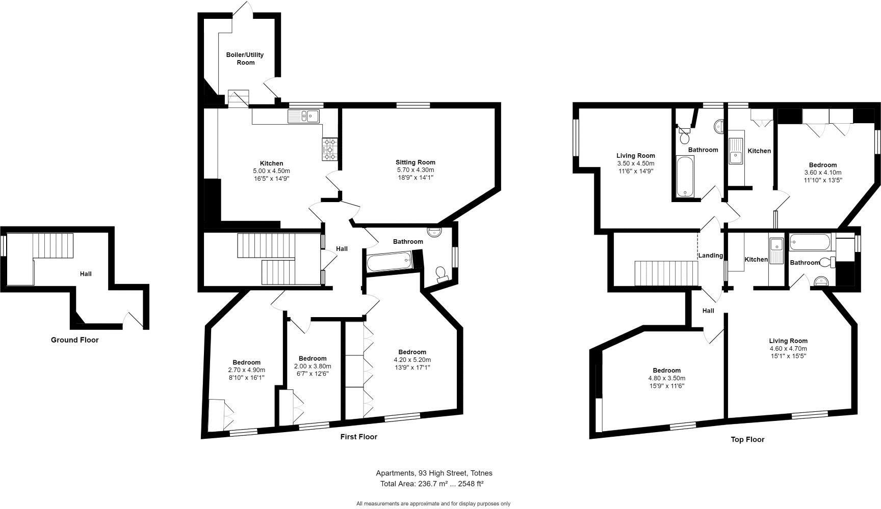
Discover an exceptional opportunity with this 6-bedroom terraced house in Totnes, offering a unique blend of residential and commercial use. The ground floor features two fully occupied commercial units, while the first floor boasts comfortable owner’s accommodation with three spacious double bedrooms. Ascend to the second floor, where you'll find two well-established one-bedroom apartments, currently operating as successful holiday rentals.
While the property is in need of updating and refurbishment, with the annex providing untapped potential for further customization, it promises excellent income possibilities for astute buyers. The vibrant surroundings include an array of local shops, cafes, and amenities, enhancing the appeal for both residents and tourists alike. Additionally, as a Grade II listed property, any future alterations will need careful consideration, adding a layer of historical value to your investment. Act quickly—opportunities like this, in a cherished town center location, don’t last long!
3 bedroom end of terrace house for sale in Totnes, TQ9 — £685,000 • 3 bed • 2 bath • 1986 ft²
2 bedroom apartment for sale in High Street, Totnes, Devon, TQ9 — £495,000 • 2 bed • 1 bath • 2090 ft²
Commercial property for sale in Totnes, TQ9 — £685,000 • 3 bed • 2 bath • 1986 ft²
3 bedroom house for sale in High Street, Totnes, Devon, TQ9 — £685,000 • 3 bed • 3 bath • 1978 ft²
3 bedroom flat for sale in Totnes, TQ9 — £350,000 • 3 bed • 1 bath • 1527 ft²
Commercial property for sale in The Plains, Totnes, TQ9 — £425,000 • 1 bed • 1 bath • 1833 ft²






























































