**Standout Features:**
- Grade II listed barn conversion with breathtaking views over the Dane Valley.
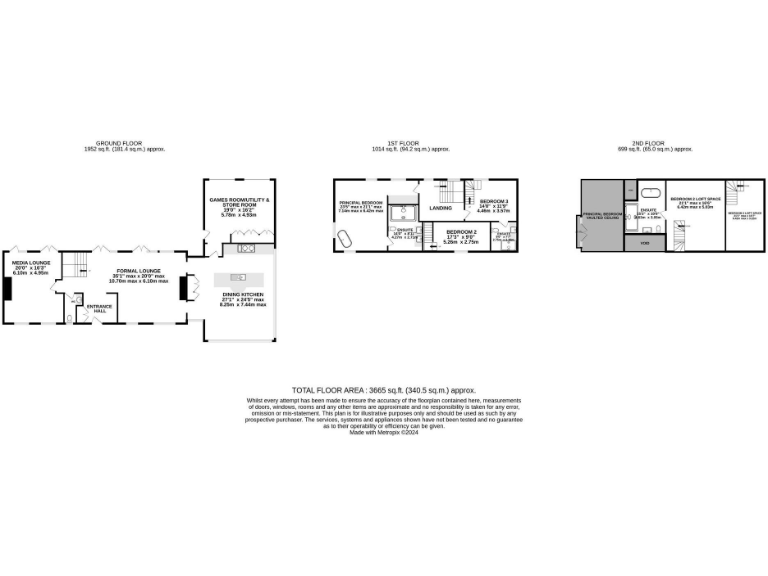
- Extensive 3,600 square feet of bespoke accommodation with high-quality finishes throughout.
- Complete back-to-brick restoration completed in 2020, exuding exceptional craftsmanship.
- Three luxurious en-suite bedrooms and four well-appointed reception rooms.
- Beautifully landscaped gardens and shared stable facilities on approximately eight acres.
- Secure, serene rural charm in a small, friendly community setting.
This exquisite barn conversion seamlessly combines timeless elegance with modern luxury, making it a rare find in the picturesque Cheshire countryside. With three impressive en-suite bedrooms and generous communal spaces defined by high ceilings and large windows, this home offers unparalleled comfort and flexibility. The state-of-the-art kitchen and dining area, featured in a stunning glass-walled extension, provides extraordinary views ideal for entertaining or quiet family moments.
Set within a secure hamlet of just eight homes, the property benefits from shared equestrian facilities, including stables and paddocks—perfect for horse enthusiasts or those seeking a supportive community lifestyle. While the property requires ongoing maintenance due to its historic status, its 2019 renovation ensures a sound structure with modern fittings. Enjoy tranquil country living with easy access to local amenities, as well as picturesque walking trails and outdoor activities. This remarkable home won't last long—embrace the beautiful rural lifestyle and make it your own today!
3 bedroom barn conversion for sale in School Lane, Henbury, SK11 — £599,995 • 3 bed • 3 bath • 1597 ft²
4 bedroom barn conversion for sale in Holmes Chapel Road, Allostock, WA16 — £1,100,000 • 4 bed • 3 bath • 3778 ft²
3 bedroom barn conversion for sale in Home Farm Barns, School Lane, Henbury, SK11 — £599,995 • 3 bed • 3 bath • 1597 ft²
4 bedroom barn conversion for sale in Hollin Lane, Sutton, Macclesfield, Cheshire, SK11 — £1,175,000 • 4 bed • 4 bath • 3012 ft²
4 bedroom barn conversion for sale in Drakelow Gorse Farm, Yatehouse Lane, Byley, CW10 — £1,450,000 • 4 bed • 5 bath • 4884 ft²
4 bedroom barn conversion for sale in Hankelow View, Brine Pits Lane, Coole Pilate, Near Nantwich, CW5 — £1,150,000 • 4 bed • 4 bath • 2800 ft²














































































































