Affordable starter home with parking and a conservatory for extra space.
Chain-free two-bedroom semi-detached home, immediate occupation possible
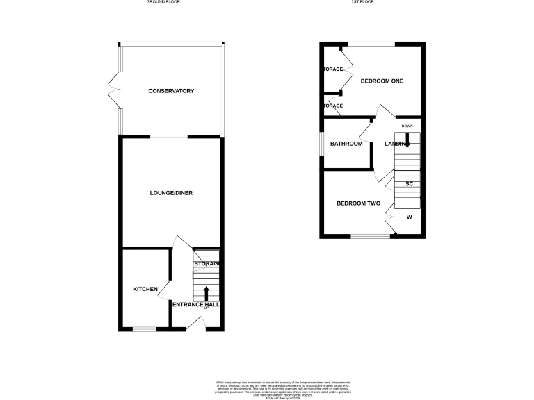
Compact overall size — approximately 503 sq ft; rooms are small-to-average
Conservatory adds versatile extra living space and direct garden access
Off-road parking with carport and enclosed rear garden with patio
Traditional specification: fitted kitchen, wall-mounted boiler, laminate floors
Area has higher deprivation and average crime levels — location trade-off
Good local schools nearby; fast broadband and excellent mobile signal
Suitable for first-time buyers or investors; cosmetic updates likely needed
A compact, chain-free two-bedroom semi-detached home in CW8, suited to first-time buyers or buy-to-let investors. The layout includes a lounge opening to a conservatory, a fitted kitchen, and two first-floor bedrooms. The plot is modest but practical, with off-road parking and an enclosed rear garden with a patio.
The property is presented in conventional, well-kept condition and offers immediate occupation with no onward chain. Rooms are small-to-average (approx. 503 sq ft overall), so the house is best for buyers seeking an affordable, low-maintenance starter home or a rental with steady local demand. The conservatory provides useful extra living space and garden access via French doors.
Practical considerations: the specification is traditional rather than modern — fitted kitchen, wall-mounted boiler and laminate flooring — so cosmetic updating would personalise the home. The wider area is described as deprived with average crime levels; nearby amenities, schools rated Good, and fast broadband help offset that. Viewing is recommended to appreciate the layout and scale.
This property sells on its convenience and affordability: small footprint, off-street parking, enclosed garden, and no chain make it a straightforward purchase for buyers wanting to move in quickly or investors seeking a simple let. Expect modest room sizes and scope for cosmetic improvement rather than structural overhaul.
2 bedroom semi-detached house for sale in Firdale Park, Northwich, CW8 — £185,000 • 2 bed • 1 bath • 471 ft²
2 bedroom terraced house for sale in Perfectly presented end terraced property with period charm and generous rear garden, CW9 — £240,000 • 2 bed • 1 bath • 1134 ft²
3 bedroom semi-detached house for sale in Rolt Crescent, Middlewich, CW10 — £250,000 • 3 bed • 1 bath • 1012 ft²
2 bedroom semi-detached house for sale in Queen Street, Northwich, CW9 — £170,000 • 2 bed • 1 bath • 748 ft²
3 bedroom semi-detached house for sale in Bond Street, Northwich, CW8 — £210,000 • 3 bed • 1 bath • 840 ft²
2 bedroom semi-detached house for sale in Binney Road, Northwich, CW9 — £185,000 • 2 bed • 1 bath • 819 ft²






































