**Standout Features:**
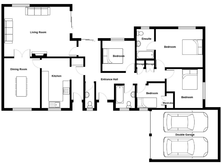
- Four spacious bedrooms, including a master with ensuite
- Generous living and dining areas ideal for family gatherings
- Double garage and ample off-road parking
- Expansive gardens and fantastic countryside views
- Excellent location in a peaceful, affluent rural neighborhood
- Potential for personalization and future renovations
**Potential Concerns:**
- Broadband speeds are categorized as slow
- Some maintenance may be needed
**Summary Description:**
Discover this inviting detached bungalow in Winscombe, a perfect blend of comfort and potential for families or retirees. With four well-proportioned bedrooms and a spacious living room that flows into a dining area, this property provides ample room for relaxation and enjoyment. The kitchen, equipped with essential appliances, is ready for family meals, while sliding doors lead to the scenic garden—ideal for outdoor entertaining or gardening.
The double garage and generous off-road parking add convenience, making this property ideal for those with multiple vehicles. Sitting on a large plot, there’s plenty of scope for future enhancements or expansions. Enjoy exceptional views of the surrounding countryside, ensuring a tranquil lifestyle in a low-crime area. While the property offers significant appeal, note that broadband speeds are limited. Priced at £495,000, this exceptional bungalow provides a unique opportunity to create your dream home in a sought-after location. Act fast—properties like this don’t last long!
4 bedroom detached bungalow for sale in Brae Road, Winscombe, BS25 — £550,000 • 4 bed • 1 bath • 1042 ft²
4 bedroom detached bungalow for sale in Sidcot Lane, WINSCOMBE, North Somerset, BS25 — £550,000 • 4 bed • 3 bath • 1928 ft²
3 bedroom detached bungalow for sale in Observatory Field, Winscombe, North Somerset. BS25 1LL, BS25 — £559,950 • 3 bed • 2 bath • 1216 ft²
4 bedroom bungalow for sale in Brae Road, Winscombe, Somerset, BS25 — £575,000 • 4 bed • 1 bath • 1412 ft²
2 bedroom detached house for sale in Sandford Road, Winscombe, BS25 — £410,000 • 2 bed • 1 bath • 969 ft²
3 bedroom detached bungalow for sale in Belmont Road, Winscombe, North Somerset. BS25 1LE, BS25 — £385,000 • 3 bed • 3 bath • 1104 ft²






























































































