High-yield HMO near university and park, chain free.
Six double bedrooms ideal for HMO or family use
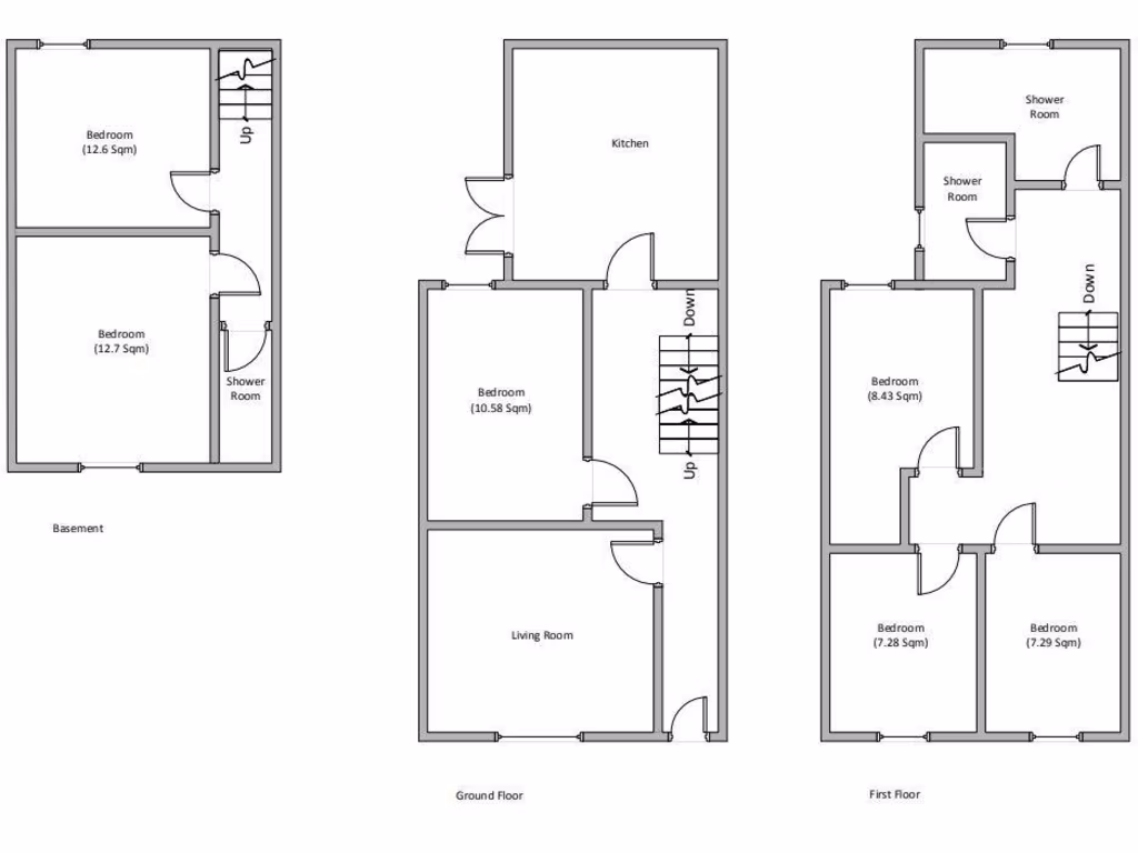
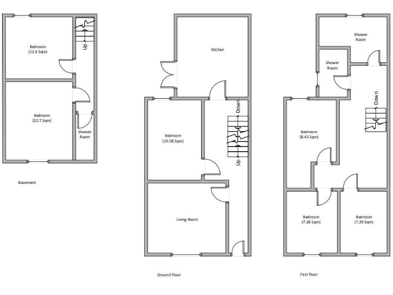
A rare freehold opportunity for investors: a six-double-bedroom semi-detached Victorian house currently let as an HMO, delivering an estimated 10–11% yield. The layout—basement, ground and first floors—offers flexible income streams and immediate occupancy with no chain. A modern kitchen and three shower rooms reduce immediate capital expenditure for rental operation.
The house sits close to Pittville Park and is a short walk to the University of Gloucestershire FCH campus, making it highly lettable to students and young professionals. Internally the property is presented as cared-for and functional: ground-floor sitting room, bedroom and cloakroom; two basement bedrooms with a shower room; and three first-floor double bedrooms served by two contemporary shower rooms.
Practical positives include freehold tenure, low council tax banding, fast broadband and excellent mobile signal. The compact rear garden is low-maintenance and receives good sun. The property would also convert easily to a family home if preferred, though room sizes are modest (total approx. 634 sq ft) and the plot is small.
Important considerations: the local area is classed as deprived with very high reported crime rates, which affects long-term owner-occupier appeal and may influence insurance and management costs. Kerb appeal needs attention and there is limited external space. Prospective buyers should budget for periodic maintenance and check HMO compliance and licensing if continuing to let to sharers.
6 bedroom semi-detached house for sale in Chequers Road, Gloucester, GL4 — £300,000 • 6 bed • 3 bath • 1119 ft²
6 bedroom semi-detached house for sale in Old Bath Road, Cheltenham Town Centre, GL53 — £600,000 • 6 bed • 4 bath • 3223 ft²
3 bedroom terraced house for sale in Swindon Road, Town Centre, Cheltenham, GL51 — £340,000 • 3 bed • 2 bath • 993 ft²
3 bedroom terraced house for sale in Courtenay Street, Cheltenham, Gloucestershire, GL50 — £325,000 • 3 bed • 3 bath • 1260 ft²
4 bedroom semi-detached house for sale in Stroud Road, Gloucester, GL1 — £395,000 • 4 bed • 2 bath • 1388 ft²
6 bedroom terraced house for sale in Cromwell Street, Gloucester, Gloucestershire, GL1 — £290,000 • 6 bed • 1 bath • 1516 ft²






































































