Bright open-plan living with balcony and parking, minutes from Didsbury village.
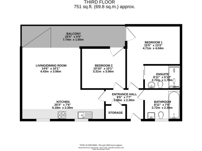
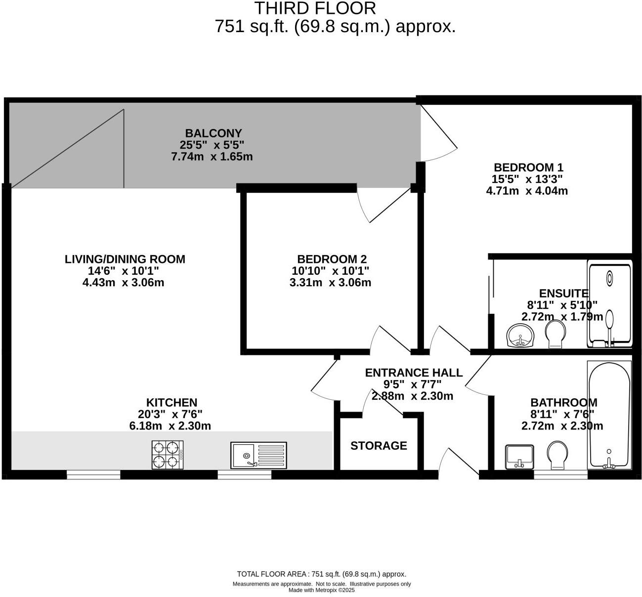
- Chain free two-bedroom apartment, 751 sq ft
- Large principal bedroom with en-suite and balcony access
- Open-plan living/kitchen with floor-to-ceiling bi-fold doors
- Underfloor heating and modern integrated kitchen appliances
- Secure gated development, allocated off-street parking
- Lift access to all floors; third-floor position
- Long lease (981 years) but property is leasehold
- Service charge approx £1,020; council tax above average
Set on the third floor of the attractive Binswood Hall development, this chain-free two-bedroom apartment combines period kerb appeal with contemporary living. The open-plan reception and kitchen benefit from floor-to-ceiling bi-fold doors, a private balcony and underfloor heating, creating bright, low-maintenance entertaining space. The principal bedroom is large and includes a stylish en-suite; bedroom two is a good-sized double with balcony access.
Practical advantages include secure gated entry, allocated off-street parking, lift access to all floors and an exceptionally long lease (981 years). At around 751 sq ft the layout suits first-time buyers or couples seeking a low-upkeep home close to Didsbury and West Didsbury’s shops, cafes and transport links.
Buyers should note the property is leasehold with an average service charge of £1,020 and above-average local council tax. Communal grounds and shared access mean outdoor space is limited to the private balcony rather than a sizeable garden. Overall this is a ready-to-move-in apartment offering modern fixtures and city-suburban convenience within a sought-after M20 location.
2 bedroom apartment for sale in Montmano Drive, West Didsbury, M20 — £265,000 • 2 bed • 2 bath • 1007 ft²
2 bedroom flat for sale in Larke Rise, West Didsbury, Manchester, M20 — £360,000 • 2 bed • 2 bath • 1062 ft²
2 bedroom flat for sale in Moorfield Road, West Didsbury, Manchester, M20 — £365,000 • 2 bed • 2 bath • 733 ft²
2 bedroom flat for sale in Jefferson, 117 Nell Lane, Didsbury, M20 — £250,000 • 2 bed • 2 bath • 778 ft²
1 bedroom flat for sale in Cavendish Road, West Didsbury, Manchester, M20 — £200,000 • 1 bed • 1 bath • 535 ft²
2 bedroom apartment for sale in The Boulevard, West Didsbury, M20 — £250,000 • 2 bed • 2 bath • 689 ft²






































































